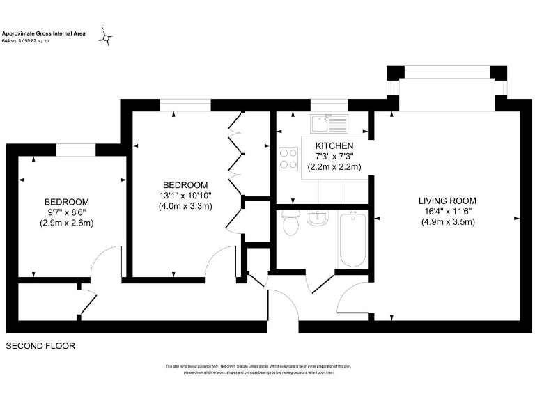
**Standout Features:**
- Two-bedroom retirement apartment for over 55s
- Bright lounge/diner with modern fitted kitchen
- Principal bedroom with fitted wardrobes
- Secure entry and access to communal lounge and gardens
- Excellent transport links to London
- Chain-free and well-maintained
**Summary:**
Discover the comfort and convenience of this bright two-bedroom retirement apartment in the heart of Purley, perfect for those aged 55 and over. The property boasts a spacious lounge/diner that opens into a stylish modern kitchen, while the principal bedroom offers fitted wardrobes for added storage. Enjoy easy access to communal gardens and a resident’s lounge, fostering a true sense of community.
Located steps away from shops and the mainline train station, this apartment provides excellent transport links to London and nearby areas. With a secure entry and property management available on weekdays, peace of mind is prioritized. While the apartment's maintenance reflects a well-kept space, the annual service charge of £3,480.73 is noteworthy for budgeting considerations.
This opportunity is ideal for retirees looking to downsize without sacrificing lifestyle or accessibility. Don't miss out on your chance to secure this lovely space in a vibrant community, where convenience meets comfort.
1 bedroom apartment for sale in Holmgrove House, Brighton Road, Purley, CR8 — £100,000 • 1 bed • 1 bath • 479 ft²
1 bedroom apartment for sale in Whytecliffe Road South, Purley, CR8 — £100,000 • 1 bed • 1 bath • 450 ft²
1 bedroom ground floor flat for sale in Foxley Hill Road, Purley, Surrey, CR8 — £95,000 • 1 bed • 1 bath • 368 ft²
1 bedroom flat for sale in Whytecliffe Road South, Purley, CR8 — £100,000 • 1 bed • 1 bath • 456 ft²
2 bedroom retirement property for sale in Gresham Court, 11 Pampisford Road, Purley, CR8 — £125,000 • 2 bed • 1 bath • 700 ft²
1 bedroom apartment for sale in Foxley Lane, Purley, CR8 — £145,000 • 1 bed • 1 bath • 585 ft²






































