Private terrace, concierge and gym — well placed for Brentford and commuter routes.
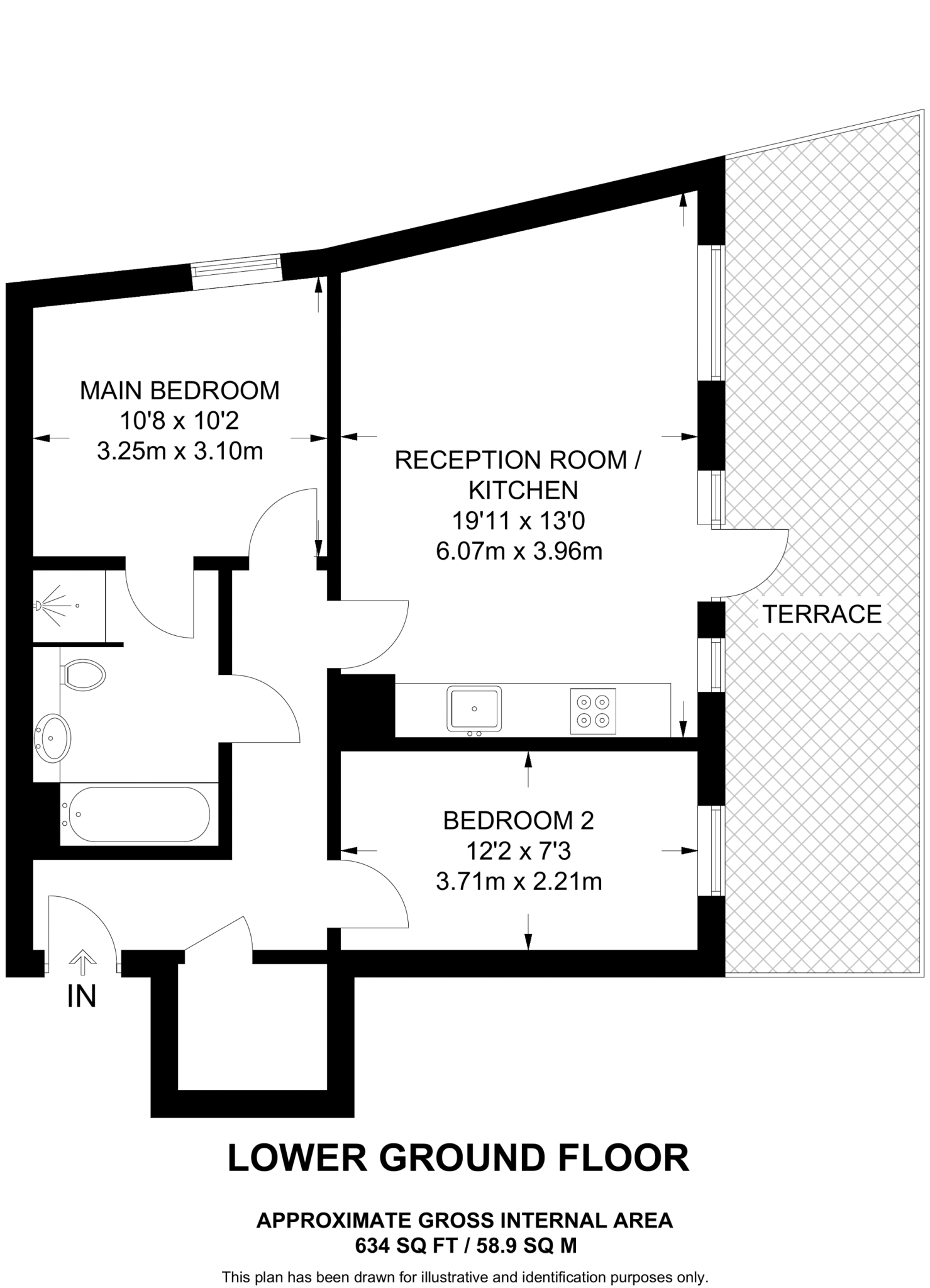
- Art Deco conversion with character and modern finishes
- Open-plan living area with large windows and natural light
- Principal bedroom with en suite; additional double bedroom
- Private lower-ground terrace for outdoor space
- Concierge, resident gym, secure entry and lift
- Leasehold with 139 years remaining
- Above-average service charge £4,500 per year
- Lower-ground location — check light and outlook in person
Set within a converted Art Deco development, this well-presented lower-ground two-bedroom flat offers practical city living with a private terrace and communal amenities. The open-plan living and kitchen receive good natural light from large windows, while the principal bedroom benefits from an en suite. A concierge, resident gym and secure entry with lift add everyday convenience.
The property suits first-time buyers or buy-to-let investors seeking a compact, contemporary flat in Brentford with excellent road links (M4/A4) and easy access to regenerated Brentford High Street, Chiswick and South Ealing. Local schools include several Ofsted-rated Good and Outstanding options, and transport and shopping amenities are within walking distance.
Notable practical points: the flat is leasehold (139 years remaining) and carries an above-average service charge of £4,500 per year, reflecting the concierge, gym and communal services. The flat sits on the lower ground floor, so prospective buyers should view in person to confirm light levels and layout. Heating is provided by a community mains-gas scheme; glazing is double but install date is unknown.
Overall this is a well-equipped, characterful conversion apartment with immediate rental or owner-occupier appeal, provided buyers accept the ongoing service charge and leasehold status.
1 bedroom flat for sale in Great West Road, Brentford, TW8 — £295,000 • 1 bed • 1 bath • 580 ft²
2 bedroom flat for sale in Great West Quarter, Brentford, TW8 — £530,000 • 2 bed • 2 bath • 857 ft²
2 bedroom flat for sale in Clayponds Lane, Brentford, TW8 — £400,000 • 2 bed • 1 bath • 744 ft²
2 bedroom flat for sale in Great West Road, Brentford, TW8 — £320,000 • 2 bed • 1 bath • 613 ft²
2 bedroom apartment for sale in Bordeston Court,The Ham, Brentford, TW8 — £450,000 • 2 bed • 1 bath • 656 ft²
2 bedroom flat for sale in Great West Road, Brentford, TW8 — £425,000 • 2 bed • 2 bath • 862 ft²










































































































































































