Chain-free one-bedroom retirement flat with 24-hour onsite staff and lift access.
South-facing living room and bedroom with good natural light
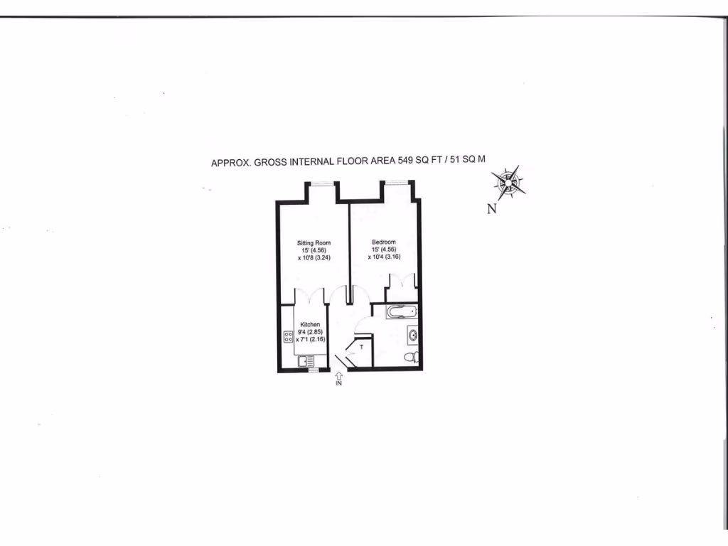
A purpose-built assisted living apartment in a flagship McCarthy & Stone development, this second-floor one-bedroom home is designed for independent retirement living with on-site support. The layout includes a south-facing living room and bedroom, a kitchen and an accessible wet room with walk-in shower. Lift access to all floors, 24-hour site staffing and a subsidised restaurant add convenience and peace of mind.
The apartment is chain-free and sits in a very central, level location in Bicester — an easy walk to stations, shops and local amenities. Constructed in 2001, it benefits from double glazing and good broadband and mobile coverage. Heating is via electric storage heaters and the property has an EPC rating of C.
Important practical points: the property is leasehold with 101 years remaining (125-year term from 01/02/2001), a high annual service charge of £8,459.60 (review 31/08/25) and a ground rent (£725pa, review 30/06/25). Council Tax band B. The development sits in a conservation area and the local crime rate is reported as high — factors to weigh against the convenience and staffed communal facilities.
This apartment will suit a downsizer or retiree seeking managed, low-maintenance living with on-site support and communal amenities. Buyers should review the service charge, ground rent reviews and communal rules to confirm long-term affordability.
1 bedroom flat for sale in Wessex Way, Bicester, OX26 — £99,000 • 1 bed • 1 bath • 658 ft²
1 bedroom apartment for sale in Wessex Way, Bicester, OX26 — £55,000 • 1 bed • 1 bath • 599 ft²
1 bedroom apartment for sale in Wessex Way, Bicester, OX26 — £80,000 • 1 bed • 1 bath • 646 ft²
2 bedroom apartment for sale in Wessex Way, Bicester, OX26 — £175,000 • 2 bed • 1 bath • 826 ft²
1 bedroom apartment for sale in Wessex Way, Bicester, OX26 — £100,000 • 1 bed • 1 bath • 568 ft²
2 bedroom apartment for sale in Kings End, Bicester, OX26 — £250,000 • 2 bed • 1 bath • 790 ft²










































