Spacious plot, rare residential mooring and residents’ parking on Taggs Island.
Five bedrooms with spectacular uninterrupted river views
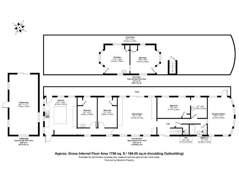
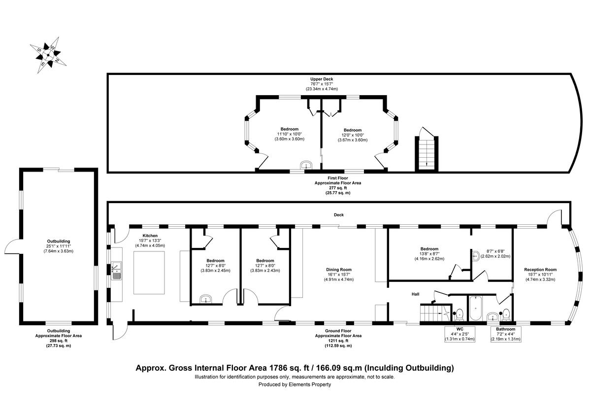
An unusually spacious five-bedroom Edwardian houseboat occupying one of Taggs Island’s largest residential plots, offering uninterrupted upstream and downstream river views and expansive private gardens. The property sits on a solid concrete hull and benefits from a long lease (over 960 years) and residents’ parking a short walk away, combining rare riverside living with practical access to Hampton Court and Central London.
The superstructure requires sympathetic restoration or replacement, presenting a clear renovation project for a buyer seeking to create a bespoke river home. The layout includes five bedrooms and a single bathroom across approximately 1,786 sq ft; while generous in scale, the accommodation and services will need updating to modern standards. A large workshop and two storage sheds add practical space for maintenance or conversion.
Buyers should note the high flood risk and that the property is offered leasehold; these are material considerations for insurance and future works. The houseboat’s age (circa 1903) and current condition mean structural surveys and consent checks will be essential, especially if proposing a new build on the mooring. When restored, the home offers an exceptional riverside lifestyle in a secluded island community celebrated for privacy and natural beauty.
This opportunity will suit a family or experienced renovator who values character, space, and river frontage, and is prepared for a hands-on restoration or rebuild, with attention to flood mitigation and statutory consents.
3 bedroom house boat for sale in Taggs Island, Hampton, Middlesex, TW12 — £850,000 • 3 bed • 1 bath • 1155 ft²
1 bedroom house boat for sale in Taggs Island, Hampton, Middlesex, TW12 — £635,000 • 1 bed • 1 bath
3 bedroom house boat for sale in Taggs Island, Hampton, TW12 — £700,000 • 3 bed • 1 bath • 1128 ft²
2 bedroom house boat for sale in Ash Island, East Molesey, Surrey, KT8 — £265,000 • 2 bed • 1 bath • 650 ft²
2 bedroom house boat for sale in Lower Sunbury Road, Hampton, Middlesex, TW12 — £58,000 • 2 bed • 2 bath • 629 ft²
1 bedroom house boat for sale in Ash Island, East Molesey, Surrey, KT8 — £110,000 • 1 bed • 1 bath














































































































