Low-maintenance home near schools and transport, offered with no onward chain.
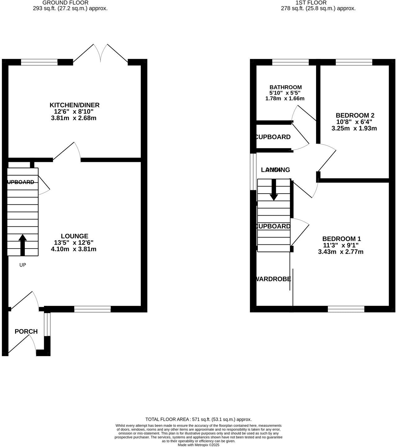
Two bedrooms: one double, one single
A tidy two-bedroom semi-detached home in a sought-after Fearnhead pocket, offered with no onward chain. The house is well maintained and move-in ready, with a spacious reception room, a functional modern bathroom and practical kitchen space. EPC C and mains gas heating help keep running costs reasonable.
The plot is modest in scale but practical: off-street parking to the front and a private rear garden provide usable outdoor space without high maintenance. The property sits close to public transport links and several well-regarded primary and secondary schools, making it a straightforward choice for first-time buyers or investors seeking a let-ready home.
Material points to note: the property is leasehold with approximately 85 years remaining and a small ground rent of £35. Overall internal floorspace is limited (around 571 sq ft), so the home is best suited to a couple, small family or buy-to-let purchaser who prioritises location and low upkeep over larger living areas.
3 bedroom detached house for sale in Dundee Close, Fearnhead, Warrington, WA2 — £325,000 • 3 bed • 2 bath • 936 ft²
3 bedroom semi-detached house for sale in Station Road North, Fearnhead, Warrington, WA2 — £210,000 • 3 bed • 1 bath • 1061 ft²
4 bedroom semi-detached house for sale in Stonehaven Drive, Fearnhead, WA2 — £300,000 • 4 bed • 2 bath • 1250 ft²
2 bedroom semi-detached house for sale in Fearnhead Lane, Fearnhead, Warrington, WA2 — £227,500 • 2 bed • 1 bath • 862 ft²
2 bedroom detached bungalow for sale in Dundee Close, Fearnhead, WA2 — £230,000 • 2 bed • 1 bath • 612 ft²
2 bedroom bungalow for sale in Chapel Cross Road, Fearnhead, WA2 0PP, WA2 — £200,000 • 2 bed • 1 bath • 614 ft²














































