Bright, move-in-ready apartment ideal for commuters and first-time buyers.
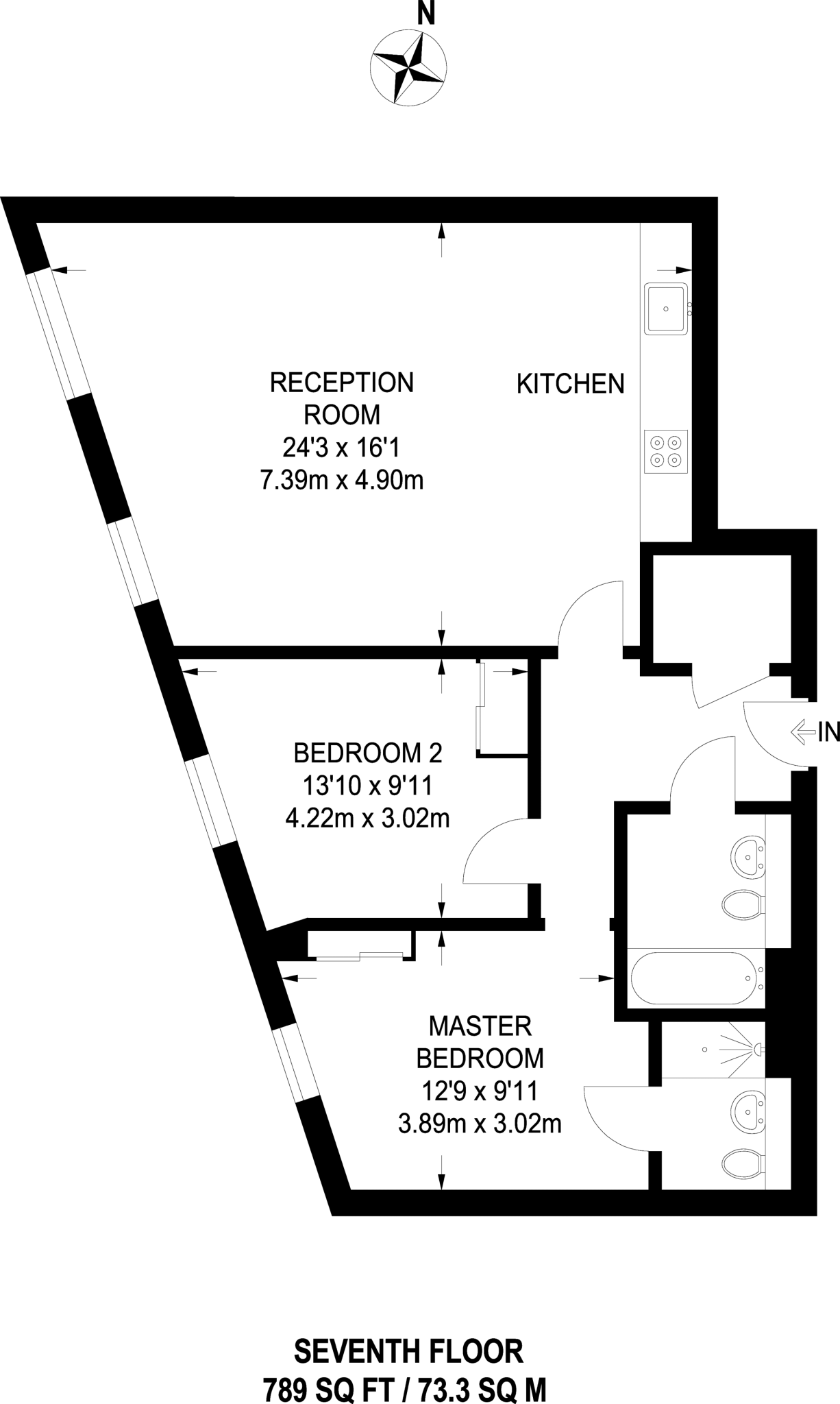
Seventh-floor apartment with panoramic river and Canary Wharf views
Set on the seventh floor of a modern riverside development, this two-bedroom apartment offers bright living space and wide views across the river to the City and Canary Wharf. The open reception includes a sizable dining area and a smart fitted kitchen with integrated appliances — well suited to home entertaining or shared living.
The principal bedroom benefits from an en suite shower room; a second double and a sleek family bathroom complete a practical, traditional layout across about 789 sq ft. A very long lease (981 years) and very low flood risk give long-term security for buyers.
Practical considerations are straightforward: heating is provided by a community scheme, and the property is leasehold. The local area is an inner-city, multi-ethnic professional neighbourhood with fast broadband and good transport links (Cutty Sark DLR nearby). While crime levels are average and the wider area records higher deprivation indices, the immediate location provides excellent shops, eateries and several well-rated primary and secondary schools.
This apartment will suit first-time buyers or professionals seeking a move-in-ready city base with strong commuter access and river views. Cosmetic updates could personalise the space, but no major works are described.
2 bedroom flat for sale in Dowells Street, Greenwich, London, SE10 — £715,000 • 2 bed • 2 bath • 1001 ft²
2 bedroom flat for sale in Waterview Drive, North Greenwich, London, SE10 — £900,000 • 2 bed • 2 bath • 808 ft²
2 bedroom apartment for sale in Marsh Wall, London, E14 — £999,950 • 2 bed • 2 bath • 857 ft²
2 bedroom apartment for sale in Dowells Street, London, SE10 — £600,000 • 2 bed • 2 bath • 892 ft²
2 bedroom apartment for sale in 25. Barge Walk, Greenwich, LONDON, SE10 — £450,000 • 2 bed • 2 bath
2 bedroom flat for sale in Dowells Street, Greenwich, London, SE10 — £680,000 • 2 bed • 2 bath • 772 ft²






























































































































