NE46 4DU - 2 bedroom property for sale in Wall Methodist Chapel, The C…

View on Property Piper

2 bedroom property for sale in Wall Methodist Chapel, The Chare, Wall, Hexham, Northumberland, NE46

Summary - Wall Chapel, Hexham, Northumberland NE46 4DU

2 bed 1 bath Not Specified

**Standout Features:**
- Grade II Listed former Methodist Chapel dating back to 1868
- Newly renovated with preserved historic elements
- Versatile layout with two large office spaces and a kitchenette
- Beneficial for various commercial uses or potential residential conversion (pending permissions)
- Convenient location in rural Wall with excellent commuter links
- Unique architectural charm with high ceilings and large arched windows

**Summary:**
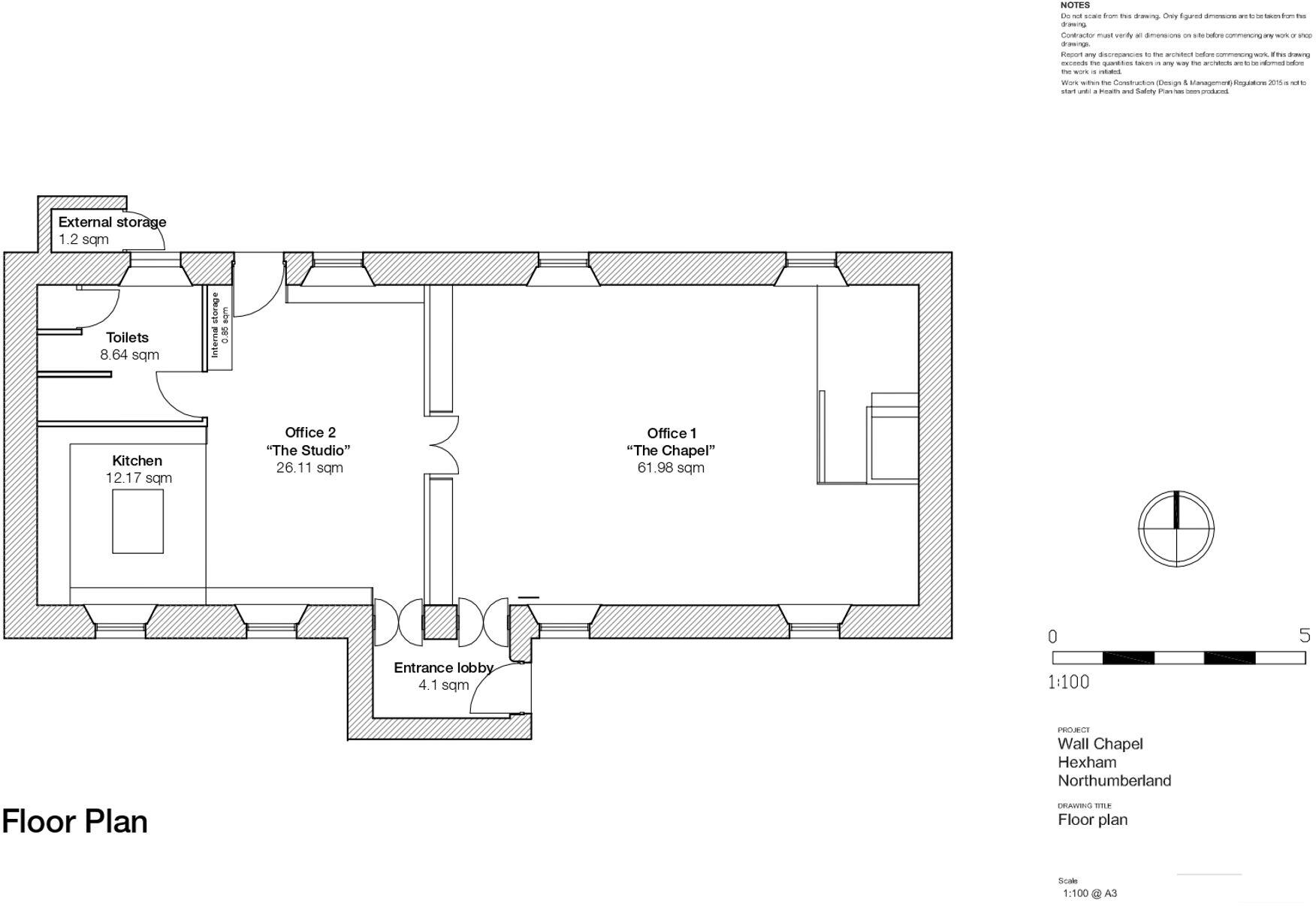
Discover a rare opportunity to own the elegant Grade II Listed Wall Methodist Chapel in picturesque Hexham, Northumberland. With soaring ceilings and beautifully preserved historic architecture, this versatile property spans 1,216 square feet and boasts two spacious office areas, perfect for commercial use or potential residential transformation, as preliminary plans have been prepared for a single-storey dwelling conversion.

The thoughtful renovations include modern kitchen fittings, a convenient kitchenette, and well-appointed ancillary facilities—ideal for seamless work-life balance. Enjoy the tranquility of rural living while being just a short distance from Hexham, which offers a full range of amenities and strong transport links to Newcastle and beyond.

Located within a safe, low-crime area, this property also provides excellent access to local schools, making it a sound investment for families and business-minded buyers alike. Don’t miss this exclusive chance to own a piece of history in a vibrant community; seize the moment before this unique property slips away!

Property Details

Image Descriptions

Floorplan Description

Rooms

Textual Property Features

Detected Visual Features

Nearby Schools

Nearest Bars And Restaurants

,,,,}

Nearest General Shops

,,}

Nearest Grocery shops

,,}

Nearest Supermarkets

,,}

Nearest Religious buildings

,,}

Nearest Medical buildings

,,,}

Nearest Leisure Facilities

,,,,}

Nearest Tourist attractions

,,}

Nearest Train stations

,,,,}

Nearest Bus stations and stops

,,,,}

Nearest Hotels

,,}

Tags

Local Market Stats

Similar Properties

Meta

High Res Images

Compatible Images

Low res Images

Thumbnails

Raw Images

High Res Floorplan Images

Compatible Floorplan Images

Low res Floorplan Images

FloorplanImages Thumbnail

Raw Floorplan Images