Architect‑remodelled four-bedroom seafront house with studio, parking and superb bay views.
Prime Tankerton seafront position with far-reaching bay views
New architect-designed extension; open-plan living and bespoke finishes
Four double bedrooms, three bathrooms; principal bedroom with en-suite
South-facing 68ft garden with studio, decking and BBQ pergola
Off-street parking for several vehicles on a pebble driveway
Air source heat pump with insulated cavity walls reduces running costs
Exterior weathering and roof need attention; some curb appeal work required
Wider area shows pockets of deprivation; broadband and mobile average
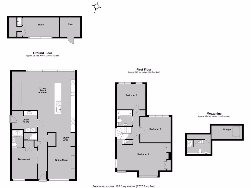
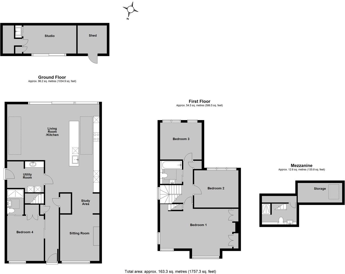
Set on Tankerton seafront, this extensively remodelled four-bedroom home makes the most of far-reaching views across Whitstable Bay. The architect-led extension creates generous, light-filled open-plan living with large glazed openings and a separate sea-facing sitting room; bespoke joinery, oak ply and terrazzo finishes give a contemporary, tactile feel.
Arranged over multiple levels, the house offers a flexible layout: ground-floor living/kitchen, a guest bedroom with en-suite and utility, and three double bedrooms upstairs including a principal with en-suite and superb sea outlooks. An air source heat pump and insulated cavity walls help reduce running costs compared with conventional electric heating alone.
Outside, a south-facing, well-planned garden (approx. 68ft) includes a studio, raised decking, pergola barbecue area and vegetable beds — ideal for family life or working from home. A pebble driveway provides off-street parking for several vehicles and coastal planting to the front reduces maintenance needs.
Notable drawbacks are factual and pragmatic: while the interior is newly renovated, parts of the exterior show weathering and would benefit from attention (roof and some curb appeal improvements). The wider area scores as more deprived and local services and broadband/mobile are average; crime levels are average. The property is freehold and offered at a premium reflecting its seafront position and specification.
5 bedroom detached house for sale in Marine Parade, Whitstable, CT5 — £1,750,000 • 5 bed • 3 bath • 3379 ft²
6 bedroom detached house for sale in Marine Parade, Tankerton, Whitstable, CT5 — £2,250,000 • 6 bed • 5 bath • 3138 ft²
4 bedroom semi-detached house for sale in Swallow Avenue, Whitstable, CT5 — £425,000 • 4 bed • 2 bath • 1074 ft²
2 bedroom detached house for sale in St. Swithins Road, Whitstable, CT5 — £675,000 • 2 bed • 1 bath • 1202 ft²
4 bedroom detached house for sale in Preston Parade, Whitstable, Kent, CT5 — £2,250,000 • 4 bed • 4 bath • 3109 ft²
3 bedroom terraced house for sale in Island Wall, Whitstable, CT5 — £699,950 • 3 bed • 2 bath • 1202 ft²






















































































































