**Standout Features:**
- Charming stone-built detached property in Prestbury village
- No onward chain
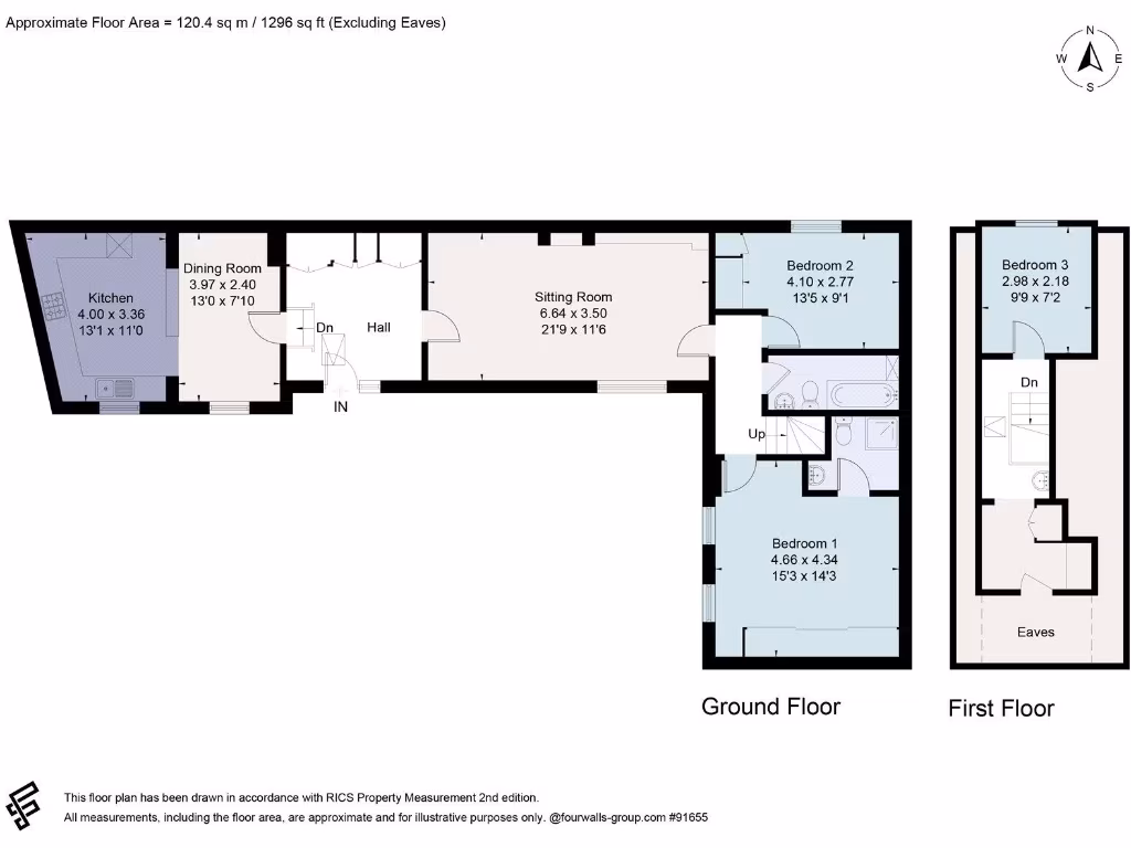
- 1,296 sq. ft. of light and airy living space
- Private, low-maintenance courtyard with ample parking
- Three bedrooms and two bathrooms
- Period features including exposed oak beams and vaulted ceilings
- Close to local amenities and public transport
- Renovation potential
**Property Overview:**
Discover the charm of this delightful stone-built home in the heart of Prestbury, boasting an impressive 1,296 sq. ft. of adaptable living space. Perfect for families or first-time buyers, the property presents a spacious reception hall leading to a cozy sitting room overlooking a private courtyard, a fitted kitchen with integrated appliances, and a versatile attic space currently utilized as an additional bedroom. Benefit from three generous bedrooms and two bathrooms, including an en suite, all bathed in natural light.
While lovingly maintained, the property does require a modernization program, allowing you to personalize the home to your taste and style. Outside, a gravel courtyard offers off-street parking for multiple vehicles, complemented by herbaceous borders—ideal for relaxation and entertaining. Located just 2 miles from Cheltenham’s vibrant center and within walking distance to local amenities, this home perfectly balances country charm with urban convenience.
With its potential for further renovations and flexibility in layout, this property is an opportunity not to be missed in an increasingly sought-after area. Act fast—homes like this in Prestbury with such unique character and charm are rare to find!
3 bedroom cottage for sale in The Burgage, Prestbury, Cheltenham, GL52 — £425,000 • 3 bed • 1 bath • 968 ft²
2 bedroom retirement property for sale in Morningside Courtyard, Idsall Drive, Prestbury, Cheltenham, GL52 — £300,000 • 2 bed • 2 bath • 955 ft²
2 bedroom cottage for sale in The Burgage, Prestbury, Cheltenham, GL52 — £335,000 • 2 bed • 1 bath • 844 ft²
3 bedroom cottage for sale in School Lane, Southam, Cheltenham, GL52 — £595,000 • 3 bed • 1 bath • 1227 ft²
2 bedroom detached house for sale in Chiltern Road, Prestbury, Cheltenham, GL52 — £325,000 • 2 bed • 1 bath • 967 ft²
2 bedroom semi-detached house for sale in Deep Street, Prestbury, Cheltenham, GL52 — £379,950 • 2 bed • 1 bath • 904 ft²






































































