Newly modernised two-bedroom end-terrace with west-facing garden and great commuter links..
End-of-terrace Edwardian home, tastefully modernised throughout
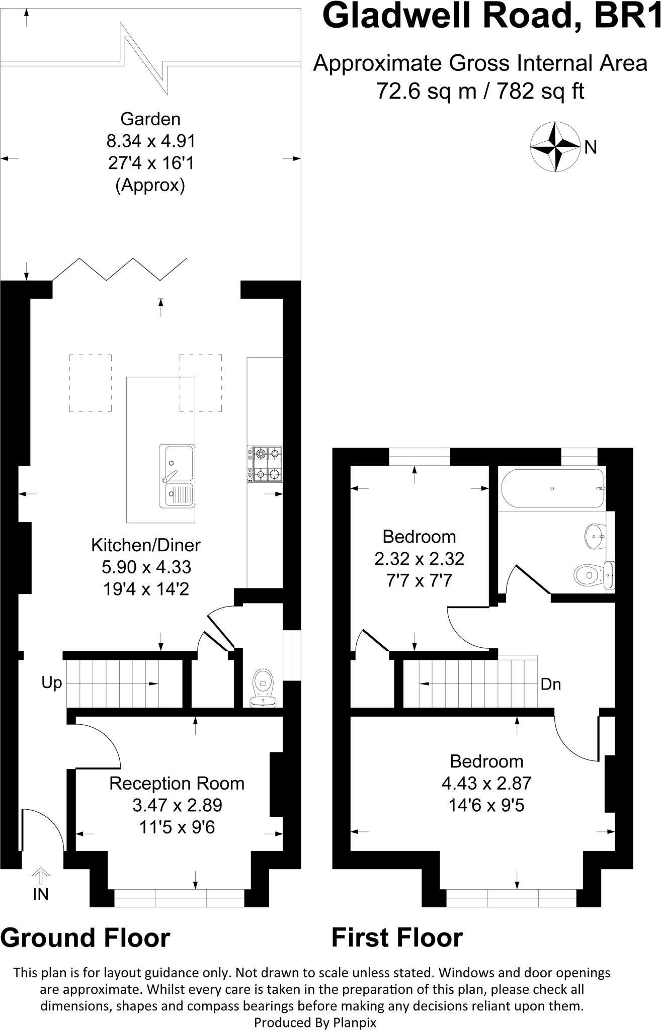
Approx. 782 sq ft; two bedrooms, one contemporary family bathroom
West-facing secluded garden with patio and bi-folding doors
0.4 miles to Sundridge Park Station; good commuter links
Freehold; gas boiler and radiators; fast broadband available
EPC rated E — potential for energy-efficiency improvements
Solid brick walls assumed uninsulated — consider insulation work
Restrictive covenants on title; council tax banding not provided
This two-bedroom end-of-terrace Edwardian home has been tastefully modernised to create a comfortable family layout across approximately 782 sq ft. A cosy living room with a bay window and feature fireplace leads through to a refurbished open-plan kitchen, dining and living area with bi-folding doors onto a west-facing secluded garden — a practical outdoor space for evening sun and entertaining.
Located 0.4 miles from Sundridge Park Station and close to a lively high street, the house suits commuters and young families wanting easy connections and local amenities. The property is freehold, has gas central heating with boiler and radiators, double glazing (installed before 2002), and fast broadband availability, which supports working from home.
Buyers should note the property’s EPC rating of E and that the original solid brick walls are assumed to have no cavity insulation, which could mean higher running costs and potential improvement work. There are restrictive covenants on the title; council tax band is not stated. The home offers strong move-in-ready appeal but also sensible potential for energy-efficiency upgrades and minor tailoring to personal taste.
2 bedroom terraced house for sale in Croft Road, Bromley, BR1 — £450,000 • 2 bed • 1 bath • 903 ft²
3 bedroom end of terrace house for sale in Howard Road, Bromley, BR1 — £600,000 • 3 bed • 2 bath • 1254 ft²
4 bedroom end of terrace house for sale in Lytchet Road, Bromley, BR1 4DU, BR1 — £775,000 • 4 bed • 2 bath • 1470 ft²
2 bedroom terraced house for sale in Tylney Road, Bromley, BR1 — £500,000 • 2 bed • 1 bath • 1074 ft²
3 bedroom semi-detached house for sale in Foxbury Road, Bromley, BR1 — £550,000 • 3 bed • 1 bath • 1500 ft²
3 bedroom terraced house for sale in Cinderford Way, Bromley, BR1 — £450,000 • 3 bed • 2 bath • 864 ft²














































