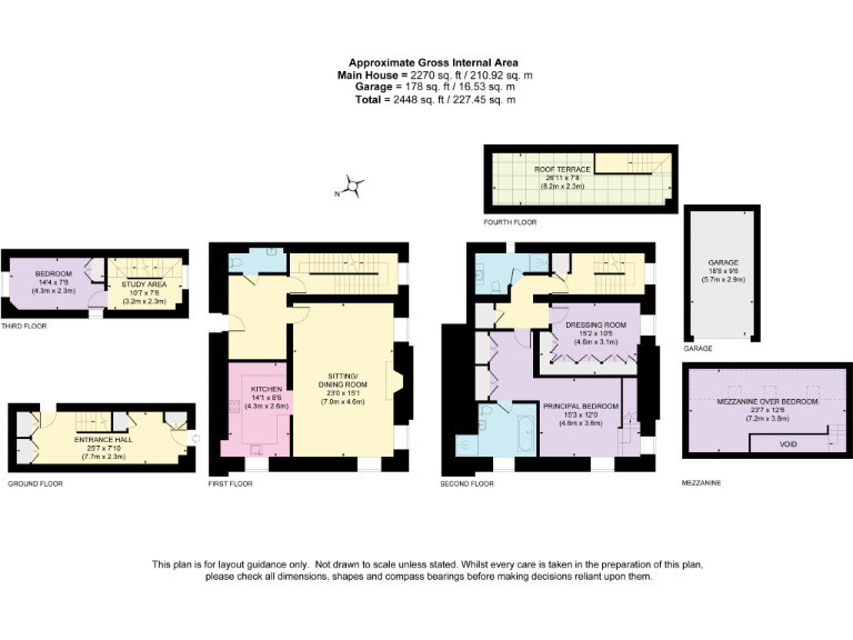
Spacious, characterful retirement living with private roof terrace and garage.
Extremely large duplex apartment with period Gothic Revival character
Set within the landmark Albury Park Mansion, this exceptional duplex apartment combines generous period proportions with contemporary living. The ground-floor entrance leads to a palatial sitting/dining room with full-length windows, an open-plan fitted kitchen and a dedicated study, while a private roof terrace overlooks the manicured communal gardens.
The principal suite occupies its own wing, with a dressing room, en suite bathroom and a mezzanine above that adds character and usable space. A further double bedroom and shower room provide comfortable guest accommodation. Practical benefits include a single garage, allocated and visitor parking, and large communal grounds for quiet outdoor leisure.
Notable practical points: the property is on a share-of-freehold basis and sits in a historic building with solid brick walls (likely limited insulation). EPC rating D and slow broadband speeds may affect running costs and connectivity. Overall the apartment is extremely large and presented in immaculate order, but buyers should factor in potential energy-efficiency improvements and communal maintenance responsibilities.
This home will suit someone seeking spacious, characterful retirement living in a peaceful country-park setting, with nearby highly rated schools and easy access to Surrey countryside amenities.
3 bedroom apartment for sale in Albury Park Mansion, Albury Park, Albury, Guildford, Surrey, GU5 — £1,595,000 • 3 bed • 3 bath • 3390 ft²
3 bedroom flat for sale in Albury Park Mansion, Albury Park, Albury, Guildford, GU5., GU5 — £995,000 • 3 bed • 2 bath • 2249 ft²
1 bedroom apartment for sale in Albury Park, Albury, Guildford, Surrey, GU5 — £395,000 • 1 bed • 1 bath • 698 ft²
3 bedroom apartment for sale in Albury Park Mansion, Albury, Guildford, Surrey, GU5, United Kingdom, GU5 — £1,795,000 • 3 bed • 3 bath • 3003 ft²
2 bedroom apartment for sale in Polsted Lane, Compton, Guildford, GU3 1JE, GU3 — £500,000 • 2 bed • 2 bath • 1264 ft²
2 bedroom apartment for sale in Burford Lodge, Dorking, RH5 — £760,000 • 2 bed • 2 bath • 1432 ft²






































































































































