Single-floor living with garage, garden and scope to modernise in sought-after Seaford.
Detached single-storey bungalow with private, secluded rear garden
South-east corner plot with conservatory and good natural light
Integral garage plus block-paved driveway for multiple cars
Master bedroom with ensuite; third room currently used as study
Chain free and within easy reach of Downs, shops and transport
Approx. 643 sq ft — modest footprint, suited to downsizers
1970s build; some rooms may benefit from modernisation
Double glazing and gas central heating; glazing install date unknown
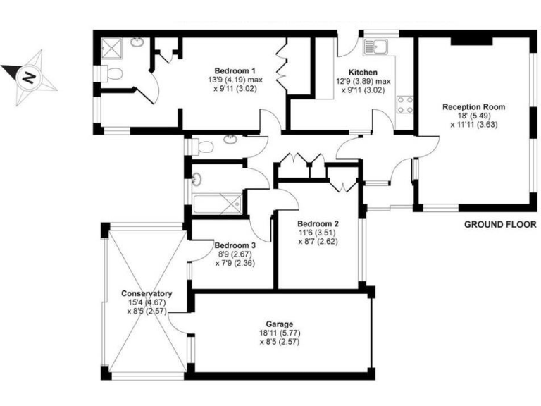
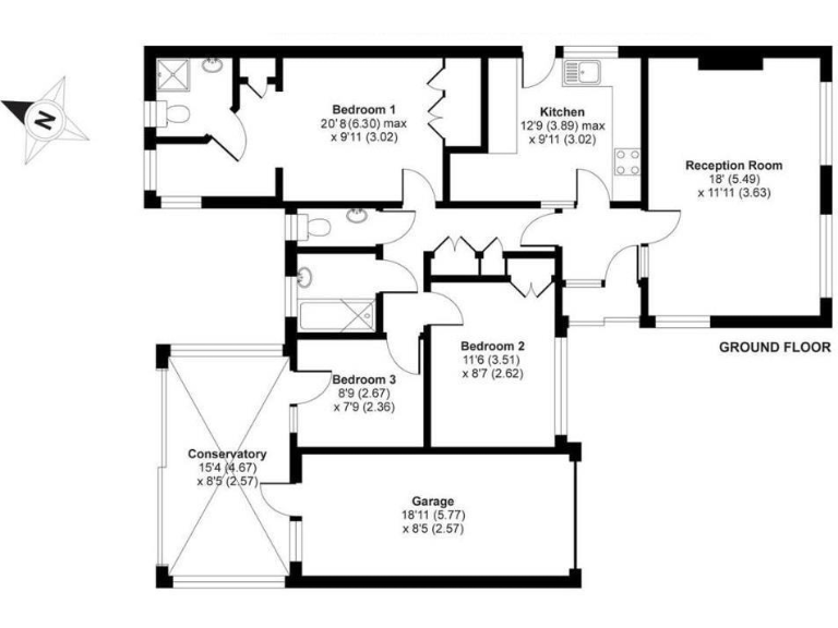
This well-located detached bungalow in Kingston Way offers comfortable single-floor living with a private, secluded rear garden and generous driveway leading to an integral garage. The light, front-facing living room and separate conservatory provide bright, usable space for relaxation and hobbies. The master bedroom benefits from an ensuite shower; two further bedrooms include a handy study/guest room. The property is chain-free and sits within easy reach of local shops, good schools and the South Downs.
Built in the mid-20th century, the bungalow is presented in good decorative order with double glazing and gas central heating. The plot is a real asset: a south-east corner position with an enclosed, mature garden and patio seating, well suited to low-maintenance gardening or a sheltered outdoor sitting area. Off-road parking for multiple vehicles and an 18'11" garage add practical convenience for owners with cars or storage needs.
Practical points to note: the overall footprint is modest (approx. 643 sq ft), so the layout suits downsizers, small families or investors rather than those needing large, multi-room living. Some rooms and service areas reflect a 1970s suburban style and there is scope for modest modernisation in kitchen and bathrooms to increase value and comfort. An EPC rating of C and a moderate council tax band indicate reasonable ongoing running costs.
3 bedroom bungalow for sale in Kingston Close, Seaford, BN25 — £350,000 • 3 bed • 1 bath • 948 ft²
3 bedroom detached bungalow for sale in Beacon Drive, Seaford, BN25 — £475,000 • 3 bed • 1 bath • 1180 ft²
3 bedroom detached bungalow for sale in Lexden Road, Seaford, BN25 — £400,000 • 3 bed • 1 bath • 1041 ft²
3 bedroom detached bungalow for sale in Morningside Close, Seaford, BN25 — £399,950 • 3 bed • 2 bath • 1164 ft²
3 bedroom detached bungalow for sale in North Way, Seaford, BN25 — £500,000 • 3 bed • 1 bath • 1168 ft²
3 bedroom detached bungalow for sale in Belgrave Crescent, Seaford, BN25 — £450,000 • 3 bed • 1 bath • 2548 ft²






























































