High-spec family living with a very large garden on Market Rasen fringe.
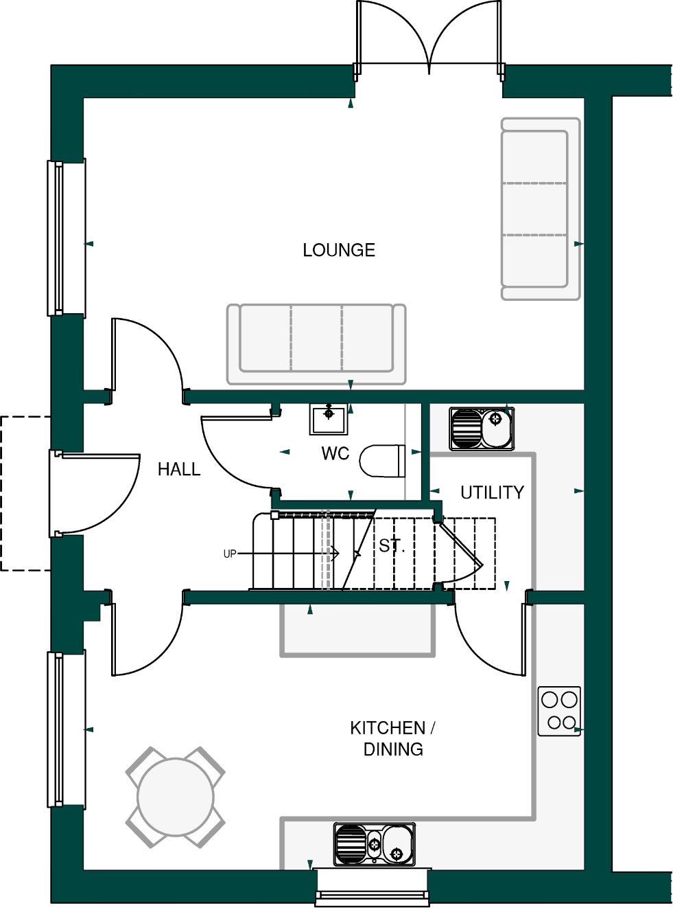
- Modern symphony kitchen with integrated Bosch appliances
- Handy utility room and convenient downstairs WC
- Spacious lounge with French doors to very large rear garden
- Three double bedrooms; en-suite to master plus family bathroom
- New build with high specification and smart thermostat
- No recorded flood risk; large private plot
- Broadband speeds very slow locally — affects home working
- Tenure unspecified; buyer should verify ownership details
The Goodwood is a modern three-bedroom semi-detached new build, finished to a high specification and designed for comfortable family living. The ground floor offers a contemporary symphony kitchen with integrated Bosch appliances, a handy utility room, downstairs WC and generous lounge with French doors opening to a very large rear garden — ideal for children or outdoor entertaining. The inclusion of a smart thermostat is a useful energy and comfort feature.
Upstairs provides three double bedrooms, including an en-suite to the master plus a separate family bathroom, so the layout suits parents and guests or a home office. The plot size is a standout asset for a town-fringe home and the property benefits from no recorded flood risk. Local schools are rated Good and the town offers independent shops, eateries and regular markets, supporting everyday family life.
Buyers should note a few practical points. Broadband speeds in the area are reported as very slow, which may affect home working or streaming without a solution. Tenure is currently unspecified and should be confirmed early in the purchase process. Crime is average for the area; the property sits in a small-town, town-fringe setting with rural employment and retiree demographics.
Overall, this house will suit first-time buyers or young families wanting a contemporary, low-maintenance home with generous outdoor space and good local schools. Confirm tenure and explore connectivity options before committing if high-speed internet is essential.
3 bedroom semi-detached house for sale in Legsby Road,
Market Rasen,
LN8 3DZ, LN8 — £299,995 • 3 bed • 1 bath
4 bedroom detached house for sale in Legsby Road,
Market Rasen,
LN8 3DZ, LN8 — £534,995 • 4 bed • 1 bath
3 bedroom semi-detached house for sale in Legsby Road,
Market Rasen,
LN8 3DZ, LN8 — £298,995 • 3 bed • 1 bath
3 bedroom detached house for sale in Caistor Road,
Market Rasen,
LN8 3JA, LN8 — £315,950 • 3 bed • 2 bath • 1086 ft²
5 bedroom detached house for sale in Legsby Road,
Market Rasen,
LN8 3DZ, LN8 — £629,995 • 5 bed • 1 bath • 2100 ft²
3 bedroom detached house for sale in Caistor Road,
Market Rasen,
LN8 3JA, LN8 — £299,950 • 3 bed • 2 bath • 985 ft²






































































