**Standout Features:**
- Approximately 10 acres of land, primarily dedicated to equestrian use
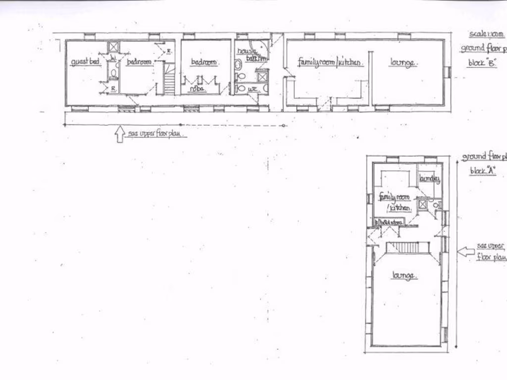
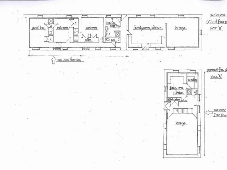
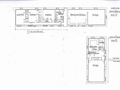
- Four-bedroom detached farmhouse with panoramic countryside views
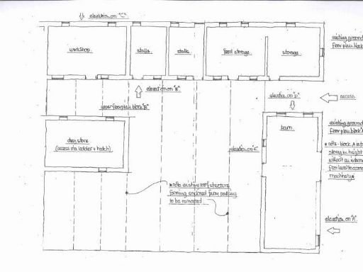
- Two stone farm buildings with outline planning for conversion into residential properties (proposed 5-bed and 3-bed homes)
- Approximately 7 acres of paddock and ¾ acre suitable for manège
- Extensive storage facilities, including a 1,750 sq. ft. hay barn and two 3,100 sq. ft. modern barns
- Charming mature gardens with abundant off-street parking
- Electric entrance gates providing privacy and security
- Excellent location with easy access to amenities in nearby towns
Welcome to Burntwood Hall Farm, a rare and unique equestrian property set within a sprawling 10-acre oasis in Brierley. This four-bedroom detached farmhouse radiates charm and tradition, a perfect backdrop for a family seeking a tranquil country lifestyle. With stunning views of the surrounding countryside and beautifully maintained gardens, the home boasts a spacious layout, including a heartwarming farmhouse kitchen, expansive lounge, and elegant dining room—all emphasizing comfort and homeliness.
For equestrian enthusiasts or those with a vision for development, this property showcases significant potential. The two stone farm buildings come with approved planning permission for conversion into a five-bedroom and a three-bedroom dwelling, making it an appealing investment opportunity. The extensive barns provide ample space for equestrian activities or alternative ventures. Whether it’s creating the ultimate stables or enjoying the vast paddocks, the options are plentiful.
Although the property's remote charm is alluring, it's conveniently located near essential amenities, including grocery stores and leisure facilities, ensuring you won’t feel isolated. With its picturesque setting and myriad possibilities, this property beckons those looking to embrace a countryside lifestyle filled with opportunity. Act quickly—such a distinct gem is sure to attract attention!
Equestrian facility for sale in Equestrian Facilities with High Quality Pasture Land, WF12 — £1,000,000 • 4 bed • 3 bath • 3500 ft²
3 bedroom farm house for sale in Sycamore Farm, Helme, HD9 — £1,250,000 • 3 bed • 2 bath • 1480 ft²
2 bedroom bungalow for sale in Equestrian Property for Sale – Five Acre Farm, Dean Lane, Thornton, Bradford, BD13 3RZ, BD13 — £485,000 • 2 bed • 1 bath • 2432 ft²
3 bedroom detached house for sale in Cone Lane, Silkstone Common, Barnsley, S75 4PT, S75 — £850,000 • 3 bed • 2 bath • 2800 ft²
3 bedroom farm house for sale in Caudle Hill, WF11 — £640,000 • 3 bed • 1 bath • 5417 ft²
4 bedroom detached house for sale in New Laithe Farm, Stainland Road, Sowood, Halifax, HX4 — £900,000 • 4 bed • 3 bath • 2192 ft²














































































































































































































































