Chain-free two-bedroom home with modern kitchen, cellar and private walled garden.
Chain-free two-bedroom end-terrace, ready to move into
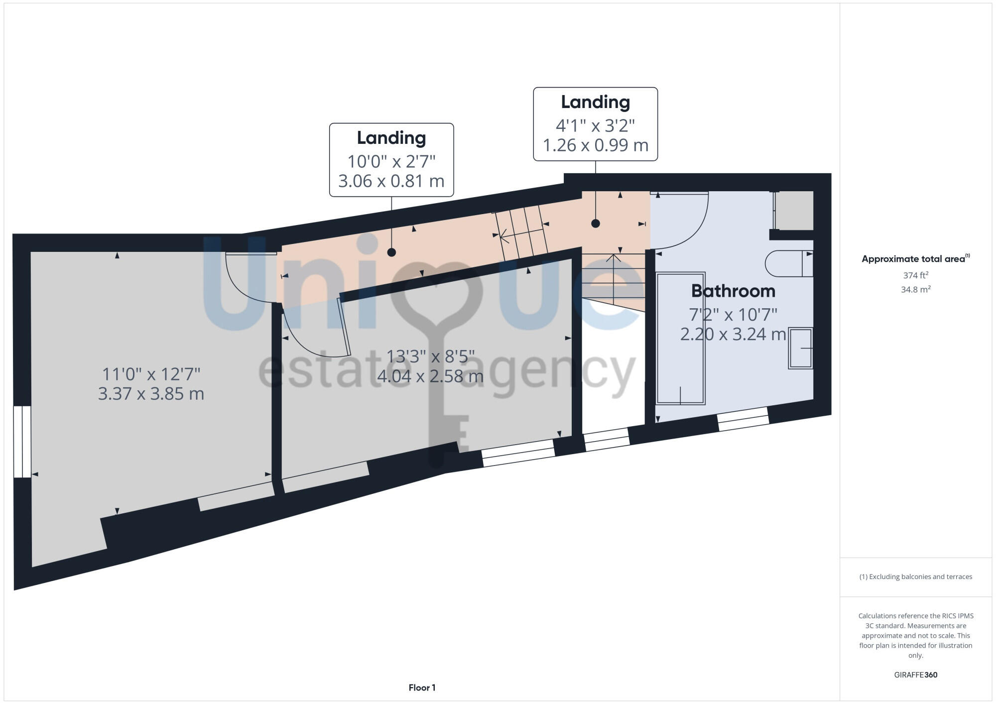
A ready-to-move-in two-bedroom end-terrace, freshly redecorated with new carpets and modern kitchen and bathroom. The open-plan living and dining room gives flexible family space while two double bedrooms sit upstairs alongside a generous family bathroom. The rear enclosed walled garden provides private outside space and rear access.
Practical extras include a large cellar divided into two useful rooms — ideal for storage, a workshop or conversion (subject to checks). The property is chain-free and offers 98 sqm (approx. 1,055 sq ft) of overall floor space in a traditional early-20th-century terrace form with double glazing and mains gas central heating.
Important considerations: the house is leasehold (fees to be confirmed) and sits in a neighbourhood classed as very deprived with higher local crime levels — buyers should factor local context into their decision. Walls are assumed to be uninsulated cavity construction, so upgrading thermal insulation may be advisable for longer-term running-cost savings.
This home suits a first-time buyer or investor seeking a habitable, low-effort purchase in a convenient spot near Lord Street shops, schools, public transport and local amenities. The property presents immediate comfort with clear scope for value-adding improvements over time.
2 bedroom terraced house for sale in Blakiston Street, Fleetwood, FY7 — £119,950 • 2 bed • 1 bath • 893 ft²
2 bedroom terraced house for sale in North Church Street, Fleetwood, FY7 — £90,000 • 2 bed • 2 bath • 797 ft²
2 bedroom terraced house for sale in Poulton Street, Fleetwood, FY7 — £99,950 • 2 bed • 1 bath • 624 ft²
2 bedroom terraced house for sale in Victoria Street, Fleetwood, FY7 — £79,950 • 2 bed • 2 bath • 840 ft²
3 bedroom terraced house for sale in Preston Street, Fleetwood, FY7 — £90,000 • 3 bed • 1 bath • 1345 ft²
2 bedroom terraced house for sale in Wolsley Road, Fleetwood, Lancashire, FY7 — £85,000 • 2 bed • 1 bath • 775 ft²










































































