Bright open-plan living with a large garden and low running costs.
New-build three-bedroom semi-detached house, freehold
Energy-efficient features reduce running costs
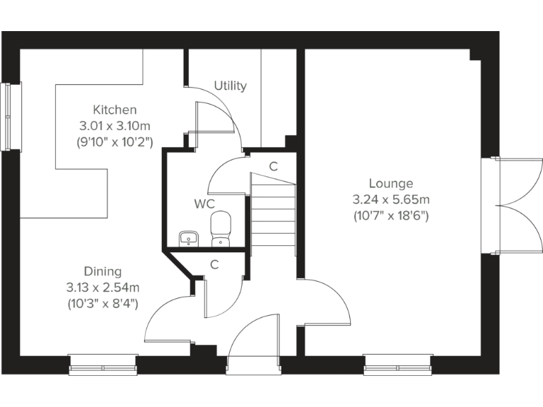
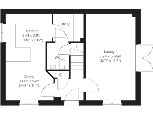
Open-plan kitchen/dining; bright living room with French doors
Very large private garden; excellent for families and entertaining
Off-street parking and separate utility room with outside access
Principal bedroom with en suite; total bathrooms recorded as one
Small internal floor area (approx. 383 sq ft) — limited interior space
Fast broadband, excellent mobile signal; low flood risk
This modern three-bedroom semi-detached home on Newland Avenue offers efficient, contemporary living ideal for families who value low-running costs and good connectivity. The open-plan kitchen/dining area and a spacious living room with French doors create a bright social hub that leads directly onto a very large garden — great for children and entertaining.
The principal bedroom benefits from an en suite and there is a separate utility room plus a downstairs WC, adding useful practical space. Off-street parking and new-build construction reduce immediate maintenance concerns, while energy-efficient features help cut ongoing bills. Broadband is fast and mobile signal is excellent, supporting home working and streaming.
Buyers should note the property’s overall internal size is small (approximately 383 sq ft), which may limit storage and furniture layouts despite the generous plot. Total bathrooms are recorded as one, so families may need to consider whether the arrangement meets their needs. The area is very affluent with good local schools nearby and low flood risk.
Sold freehold in a well-served Bishop’s Stortford neighbourhood, this home suits buyers seeking modern, low-maintenance living with garden potential — particularly families looking to be close to strong primary and secondary schools.
3 bedroom semi-detached house for sale in Newland Avenue,
Bishop's Stortford,
UK,
CM23 2YF, CM23 — £520,000 • 3 bed • 1 bath • 382 ft²
3 bedroom house for sale in Newland Avenue,
Bishop's Stortford,
UK,
CM23 2YF, CM23 — £470,000 • 3 bed • 1 bath • 690 ft²
2 bedroom semi-detached house for sale in Newland Avenue,
Bishop's Stortford,
UK,
CM23 2YF, CM23 — £399,995 • 2 bed • 1 bath • 504 ft²
3 bedroom detached house for sale in Stortford Fields,
Hadham Road, Bishops Stortford,
Hertfordshire,
CM23 2QB, CM23 — £530,000 • 3 bed • 1 bath • 409 ft²
3 bedroom detached house for sale in Newland Avenue,
Bishop's Stortford,
UK,
CM23 2YF, CM23 — £510,000 • 3 bed • 1 bath • 312 ft²
3 bedroom semi-detached house for sale in Thorpe Road, Bishop's Stortford, CM23 — £425,000 • 3 bed • 2 bath • 768 ft²






























