Affordable long-lease flat with generous living space and town views.
- Top-floor Victorian conversion with high ceilings and town views
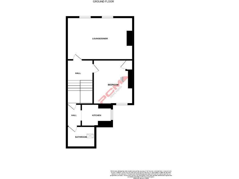
- Large 19ft lounge-dining room, good natural light
- One double bedroom with built-in storage
- Long lease: approx. 155 years remaining
- Small total area: about 413 sq ft
- Heating via electric room heaters; consider upgrade costs
- Solid brick walls assumed uninsulated; energy improvements possible
- Local area: very high crime and very deprived ward
A bright top-floor one-bedroom flat with a long lease and surprisingly generous lounge-diner, ideal for a first-time buyer seeking an affordable entry into Hastings. The 19ft reception room enjoys townscape views toward West Hill and benefits from high ceilings and plenty of natural light. Ample built-in storage helps maximise the compact 413 sq ft footprint.
Practical running costs are attractive: Council Tax Band A and a low ground rent (£30 pa). The lease has approximately 155 years remaining, giving long-term security uncommon at this price point. Double glazing has been installed and the flat occupies the entire top floor of a Victorian terraced building, retaining period character while feeling light and airy.
Buyers should note that heating is by electric room heaters and the building has solid brick walls with assumed no cavity insulation, so some buyers may want to budget for improved heating or additional insulation. The local area shows high crime levels and sits in a more deprived ward, so prospective purchasers should view the neighbourhood personally. The property is close to local shops, transport and the popular West Hill, offering easy access to the town centre and seafront.
Overall this flat represents good value for a single person or couple wanting a well-located, long-lease home or a rental investment with low holding costs. It offers immediate occupation potential with straightforward cosmetic updates and longer-term scope to improve heating and energy efficiency.
1 bedroom flat for sale in Wellington Road, Hastings, TN34 — £150,000 • 1 bed • 1 bath • 567 ft²
1 bedroom flat for sale in Cornwallis Terrace, Hastings TN34 1EB, TN34 — £130,000 • 1 bed • 1 bath • 509 ft²
1 bedroom flat for sale in Robertson Street, Hastings, East Sussex, TN34 — £88,000 • 1 bed • 1 bath • 472 ft²
1 bedroom flat for sale in Wellington Road, Hastings, TN34 — £130,000 • 1 bed • 1 bath • 644 ft²
1 bedroom flat for sale in Wellington Road, Wellington Lodge, Hastings, TN34 — £110,000 • 1 bed • 1 bath • 474 ft²
1 bedroom flat for sale in Nelson Road, Hastings, TN34 — £122,500 • 1 bed • 1 bath • 460 ft²






















































