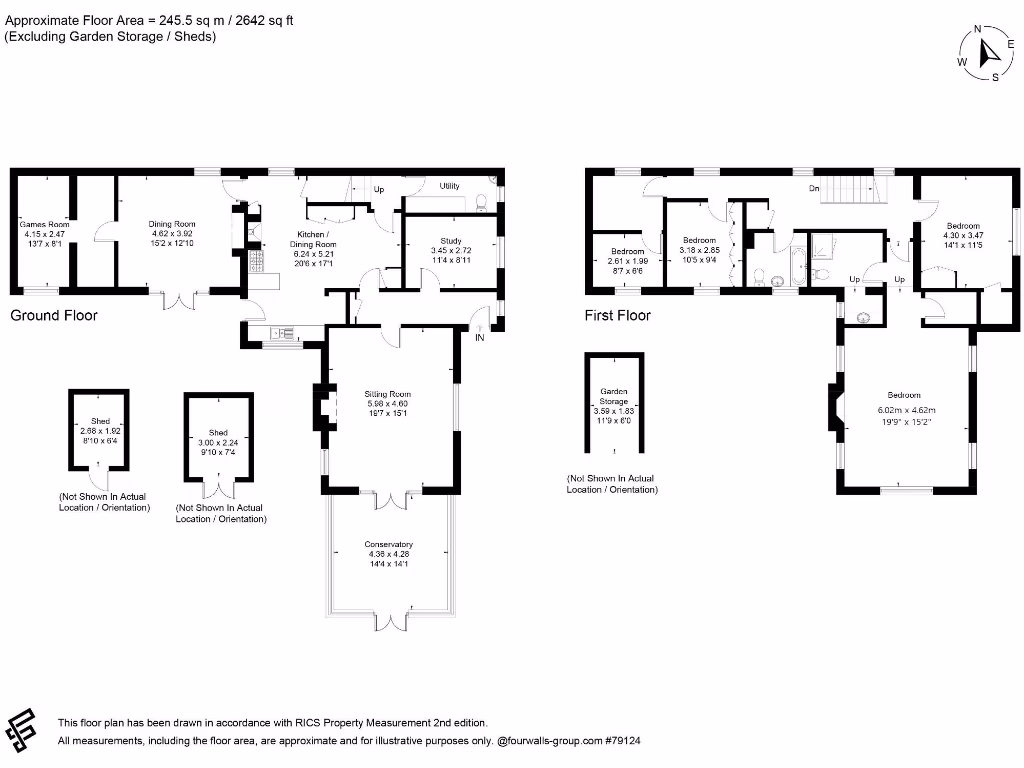
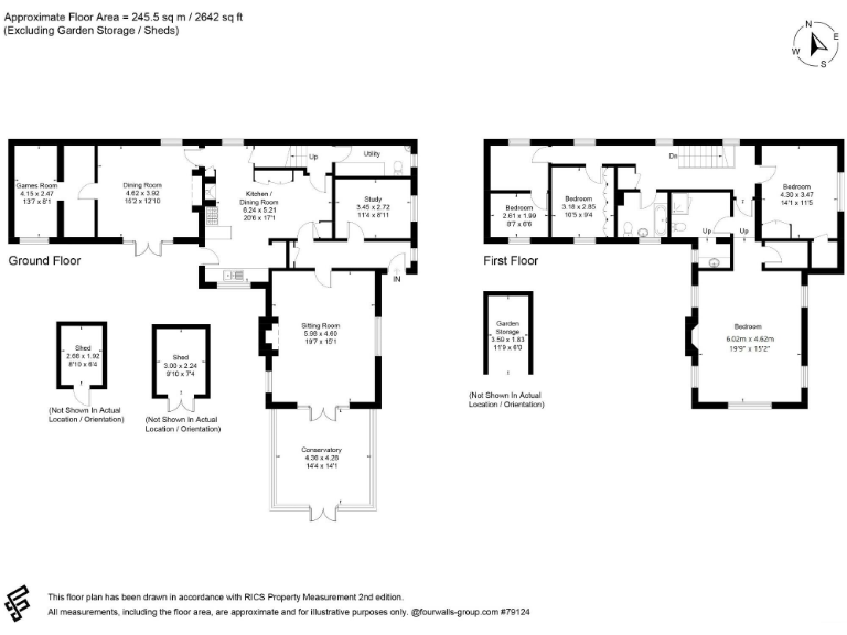
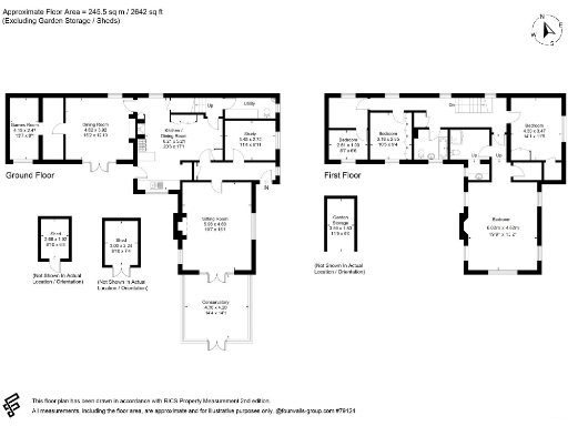
**Standout Features:**
- Traditional red-brick cottage with conservatory
- Generous living space at 2,642 sq ft
- Five spacious bedrooms and two bathrooms
- Large garden with natural pond, set in a tranquil environment
- Additional study and multiple reception areas
- Beautiful views across water meadows
**Summary:**
Welcome to Willow Cottage, a delightful and spacious five-bedroom cottage that perfectly blends rustic charm with modern comforts. Set in a serene small-town locale, this freehold property boasts an impressive living space of 2,642 sq ft, highlighted by well-appointed rooms including a cozy sitting room featuring a woodburning fireplace, a light-filled conservatory with stunning meadow views, and an inviting country-style kitchen with ample dining space.
The home offers unique flexibility with additional areas such as a study and snug/playroom—ideal for family living or remote working. The expansive grounds enhance the property’s appeal, providing an idyllic outdoor retreat complete with a natural pond and lush grassy areas. The proximity to reputable schools with good Ofsted ratings makes this an excellent choice for families. While the cottage is in good condition, the opportunity for personal renovation touches invites you to make it your own. Don’t miss this opportunity to own a unique slice of countryside tranquility—schedule a visit today!
3 bedroom house for sale in Ram Alley, Ashford Hill, Hampshire, RG19 — £700,000 • 3 bed • 3 bath • 1791 ft²
3 bedroom detached house for sale in Strongrove Hill, Bath Road, RG17 0SJ, RG17 — £695,000 • 3 bed • 1 bath • 1302 ft²
5 bedroom detached house for sale in Barrow Lane, Harwell, OX11 — £920,000 • 5 bed • 3 bath • 2602 ft²
5 bedroom detached house for sale in Frilsham, Thatcham, Berkshire, RG18 — £1,000,000 • 5 bed • 3 bath • 2430 ft²
2 bedroom semi-detached house for sale in Newtown, Ramsbury, SN8 2QD, SN8 — £385,000 • 2 bed • 1 bath • 605 ft²
4 bedroom semi-detached house for sale in Oxford Street, Aldbourne, Wiltshire, SN8 2DQ., SN8 — £695,000 • 4 bed • 1 bath • 1953 ft²


























































































