Characterful three‑bed family house near top schools and parks.
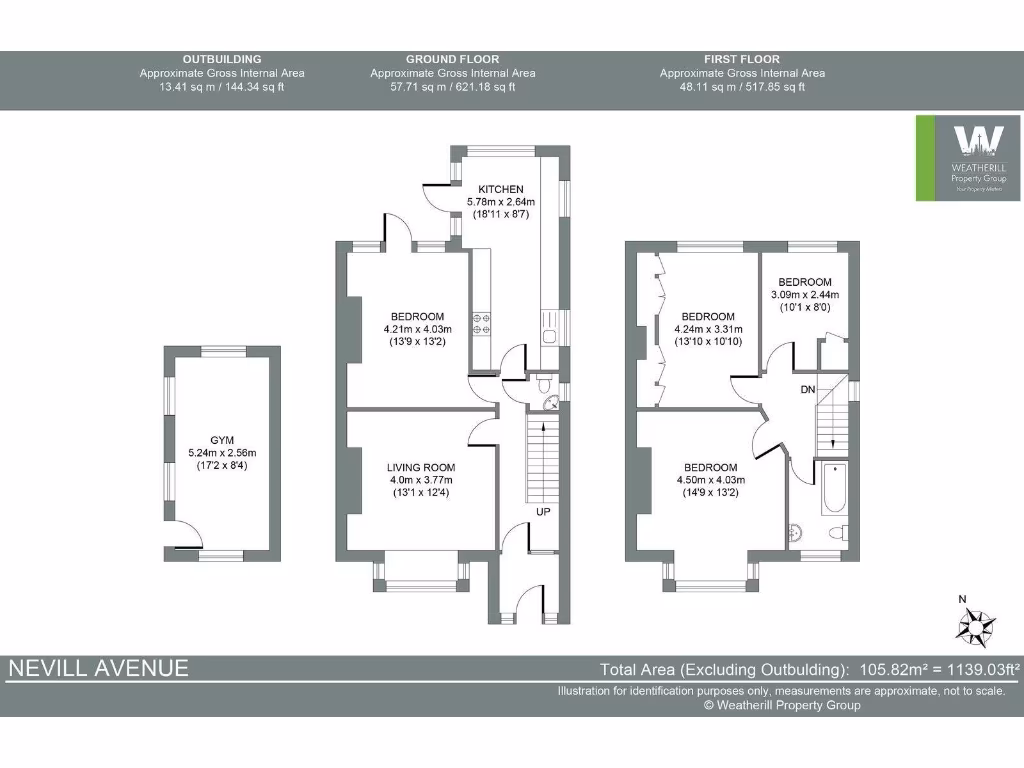
Three double bedrooms throughout the first floor
This well‑proportioned semi‑detached house in Hove’s desirable Nevill area offers a ready-to-live-in family layout across two floors. The home has three double bedrooms, two generous reception rooms and a sizeable eat‑in kitchen that suits busy family life. A clever garage conversion provides a useful studio/gym, adding flexible space for hobbies or home working.
Outside, the property benefits from off‑street parking for at least two cars to the front and a level, lawned rear garden ideal for children and low‑maintenance outdoor time. Interiors are presented in good decorative order with gas central heating and bright rear first‑floor outlooks. The location is a strong draw, close to several well‑rated local schools and local amenities.
Practical considerations: there is one main bathroom plus a ground‑floor WC, and the garage conversion means the original garage parking/storage is repurposed. The house was built in the 1930s, has pre‑2002 double glazing and cavity walls that are assumed to lack insulation, so buyers seeking maximum energy efficiency may want to budget for upgrades. Any enlargement or major change would be subject to planning and building consents.
Overall this semi offers comfortable, characterful family accommodation with immediate usability and scope to personalise or improve EPC-related elements. It should suit families seeking space, good local schools and straightforward suburban convenience.
5 bedroom semi-detached house for sale in Nevill Avenue, Hove, BN3 — £900,000 • 5 bed • 4 bath • 1922 ft²
3 bedroom semi-detached house for sale in Nevill Road, Hove, BN3 — £650,000 • 3 bed • 1 bath • 1260 ft²
4 bedroom house for sale in Nevill Road, Hove, BN3 — £650,000 • 4 bed • 2 bath • 1549 ft²
4 bedroom house for sale in Holmes Avenue, Hove, BN3 — £775,000 • 4 bed • 1 bath • 1314 ft²
4 bedroom semi-detached house for sale in Nevill Road, Hove, BN3 — £650,000 • 4 bed • 2 bath • 1622 ft²
3 bedroom semi-detached house for sale in Nevill Road, Hove, BN3 — £700,000 • 3 bed • 1 bath • 1636 ft²


























































































