BS40 7TL - 4 bedroom detached house for sale in The Barn, Plot 5 Paddo…

View on Property Piper

4 bedroom detached house for sale in The Barn, Plot 5 Paddock Rise, Street End, BS40 - Custom Build, BS40

Summary - The Barn, Plot 5 Paddock Rise, Street End, BS40 - Custom Build BS40 7TL

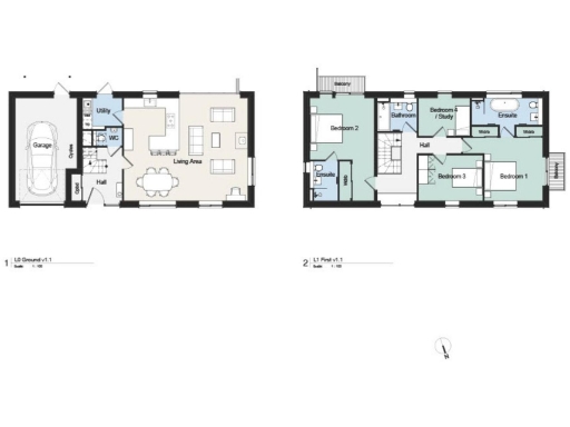
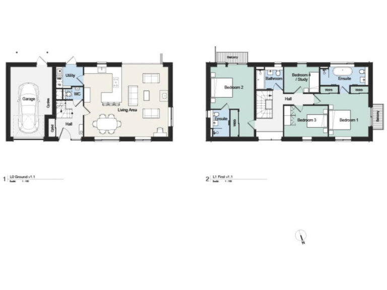
4 bed 3 bath Detached

**Standout Features:**

- Custom build opportunity for a uniquely designed 4-bedroom, 3-bathroom detached home
- Approximately 1,829 sq ft of flexible living space
- Located in Blagdon, North Somerset, within an Area of Outstanding Natural Beauty
- Backed by a 10-year new build warranty
- Breathtaking countryside views, including the Mendip Hills and Blagdon Lake
- Off-street parking with a garage
- Access to local amenities and excellent transport links to Bath and Bristol

**Summary:**

Welcome to "The Barn," an exceptional custom-build home nestled in the charming village of Blagdon, North Somerset. This expansive 4-bedroom, 3-bathroom property offers the unique opportunity for you to personalize spaces across approximately 1,829 sq ft. Whether you’re envisioning a modern family residence or a serene retreat, the planning approval is in place, allowing you to collaborate with award-winning developers Coln Signature Homes and bring your dream to life.

Surrounded by serene landscaped gardens and mesmerizing countryside views, this property merges contemporary elegance with the tranquility of rural living. Enjoy easy access to local amenities, including shops, schools, and leisure facilities, all while being just a short commute away from Bristol and Bath. With the added benefits of substantial stamp duty savings, a fixed-price build contract, and a 10-year warranty, this rare opportunity will not last long. Your bespoke countryside home awaits—seize this chance to shape a masterpiece tailored just for you!

Property Details

Brochure Descriptions

Image Descriptions

Floorplan Description

Rooms

Textual Property Features

Detected Visual Features

Nearby Schools

Nearest Bars And Restaurants

,,,,}

Nearest General Shops

,,}

Nearest Grocery shops

,,}

Nearest Supermarkets

,,}

Nearest Religious buildings

,,}

Nearest Medical buildings

,,,}

Nearest Airports

}

Nearest Leisure Facilities

,,,,}

Nearest Tourist attractions

,,}

Nearest Train stations

,,,,}

Nearest Bus stations and stops

,,,,}

Nearest Hotels

,,}

Tags

Local Market Stats

AirBnB Data

Similar Properties

Meta

High Res Images

Compatible Images

Low res Images

Thumbnails

Raw Images

High Res Floorplan Images

Compatible Floorplan Images

Low res Floorplan Images

FloorplanImages Thumbnail

Raw Floorplan Images