Ready-to-move-in flat near Bethnal Green and Shoreditch transport links.
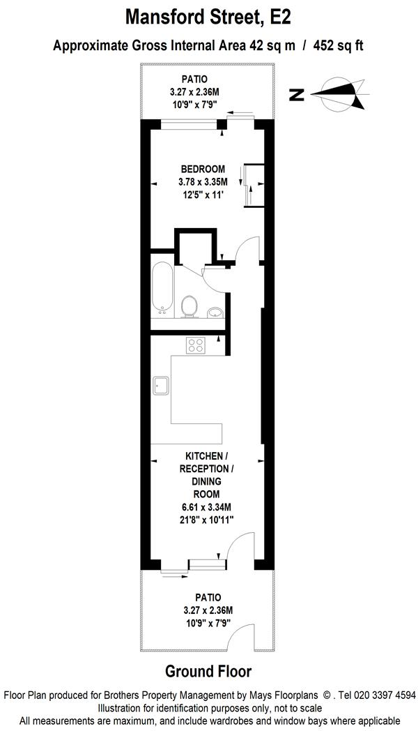
Large one-bedroom flat with two patios and private entrance
Floor-to-ceiling windows deliver abundant natural light
Newly renovated interior with modern kitchen and bathroom
Approx. 452 sqft — average one-bed size, efficient layout
Leasehold with ~110 years remaining; annual service charge £2,616
Ground rent £250 per year; council tax band C (affordable)
Ground-floor location: easier access but reduced privacy
Area classified as deprived; local crime levels are average
Light-filled and efficiently arranged, this newly renovated one-bedroom ground-floor flat offers ready-to-move-in comfort in a central E2 location. Large floor-to-ceiling windows and two patios bring generous natural light and a sense of space to the open-plan kitchen/living area. The modern kitchen with integrated appliances, contemporary bathroom and laminate wood flooring keep upkeep straightforward.
Practical details suit first-time buyers: the lease has about 110 years remaining, and the building’s exterior has recently been refurbished, giving a fresh, near-new appearance. The flat benefits from excellent mobile signal and fast broadband, and local transport links (Central and Overground lines) are within comfortable walking distance.
Buyers should note this is a leasehold property with annual service charge (approx. £2,616) and ground rent (£250). At around 452 sqft the accommodation is average sized for a one-bedroom — practical but not generous — and being on the ground floor means less privacy than upper floors. The wider area is classified as deprived, and local crime levels are average, so factor neighbourhood context into any decision.
Overall, the apartment offers a low-maintenance, contemporary home or a straightforward rental opportunity for someone seeking central Hackney/ Bethnal Green convenience with immediate occupation potential.
1 bedroom apartment for sale in Bundocks Walk, London, E3 — £425,000 • 1 bed • 1 bath • 544 ft²
1 bedroom flat for sale in Hackney Road, Shoreditch, E2 — £300,000 • 1 bed • 1 bath • 743 ft²
1 bedroom flat for sale in Maitland House, Bishops Way, Bethnal Green, London, E2 — £300,000 • 1 bed • 1 bath • 517 ft²
1 bedroom apartment for sale in Lansdowne Drive, London Fields, E8 — £375,000 • 1 bed • 1 bath • 408 ft²
1 bedroom flat for sale in Teesdale Street, Bethnal Green, E2 — £400,000 • 1 bed • 1 bath • 388 ft²
1 bedroom flat for sale in Chatsworth Road, London, E5 — £375,000 • 1 bed • 1 bath • 401 ft²


































































