Modern family living with garden, home office and easy M1 access.
- Detached three-storey house with four double bedrooms
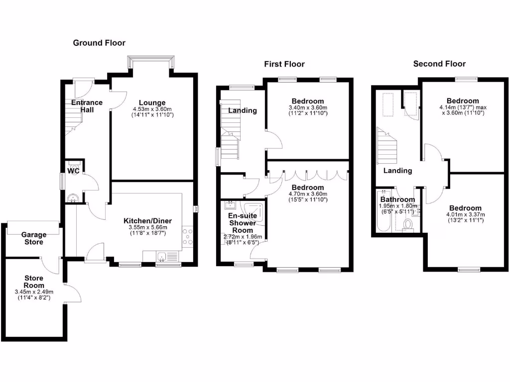
Tucked at the end of a quiet cul-de-sac, this modern three-storey detached house offers four true double bedrooms and flexible living across approximately 1,199 sq ft. The ground floor provides a welcoming hall, lounge and a kitchen-diner that opens onto an enclosed rear garden — a calm outside space for children and small gatherings. Off-street parking and a partial garage with a converted rear office add practical convenience for home-working or storage.
This home is well suited to families seeking space and good local schools; several primary and secondary schools rated Good or Outstanding lie within easy reach. Commuters benefit from quick access to the M1 and nearby amenities including shops, pubs and countryside walks. The property is chain-free, which can speed a move when probate is completed.
Notable points to consider: probate is outstanding, and the garage has been part-converted so only part of its original storage is retained. Council tax is understood to be band E (please verify). Broadband and mobile signals are average for the area. The house is described as well maintained but measurements are indicative and services have not been tested.
Overall this is a modern, spacious family home with a versatile layout and private garden, offering immediate living comfort and potential for small improvements. Prospective buyers should confirm tenure, council tax and the probate status with their solicitor before proceeding.
4 bedroom detached house for sale in Water Royd Drive, Dodworth, Barnsley, South Yorkshire, S75 — £320,000 • 4 bed • 2 bath • 1284 ft²
4 bedroom detached house for sale in Towngate, Silkstone, Barnsley, S75 — £475,000 • 4 bed • 2 bath • 1510 ft²
4 bedroom detached house for sale in Far Townend, Dodworth, Barnsley, S75 3TQ, S75 — £368,000 • 4 bed • 1 bath • 939 ft²
4 bedroom detached house for sale in Wood End Court, Dodworth, Barnsley, S75 — £420,000 • 4 bed • 2 bath • 1133 ft²
4 bedroom detached house for sale in Burncross Grove, Burncross, S35 — £500,000 • 4 bed • 2 bath • 1136 ft²
4 bedroom detached house for sale in Windhill View, Grimethorpe, S72 — £320,000 • 4 bed • 2 bath • 1185 ft²


























































































