Well‑located commuter home with private garden and EV charging.
- Built in 2020; presented in immaculate condition
- Two large double bedrooms, one family bathroom upstairs
- Fitted kitchen/diner with rear doors to garden
- South‑East facing private rear garden with patio
- Allocated driveway for two cars; EV charging point provided
- Short walk to Arlesey mainline station (approx 35 mins to London)
- Medium flood risk for the plot — check insurance implications
- Freehold tenure; Council Tax Band C (2025/26)
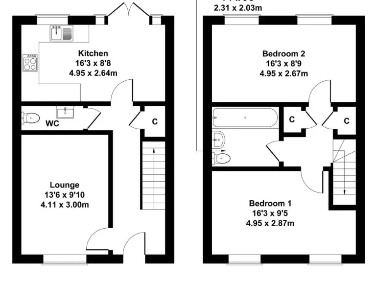
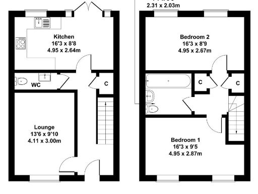
Built in 2020 and presented in immaculate order, this two-bedroom semi sits in a quiet, private cul-de-sac just a short walk from Arlesey mainline station. The layout works well for families or commuting couples: a lounge, fitted kitchen/diner with doors to the garden, downstairs cloakroom and two large double bedrooms upstairs.
Practical features include an allocated driveway for two cars with an electric vehicle charging point, mains gas central heating and fast broadband/mobile signal — useful for home working and daily London commutes (Kings Cross in about 35 minutes). The South-East facing rear garden is private and generous for the area, with gated rear access and a patio.
Buyers should note there is a single family bathroom upstairs and an overall medium flooding risk for the plot; purchasers may wish to review insurance and flood-preparedness. The home is freehold and low-maintenance thanks to its recent construction, making it a straightforward move-in opportunity for first-time buyers or downsizers seeking a modern, well-connected property.
Local amenities include several Good-rated primary and secondary schools within walking distance, shops and community facilities. Council Tax Band C keeps ongoing costs relatively affordable for the location.
4 bedroom semi-detached house for sale in Welchs Close, Henlow, SG16 — £575,000 • 4 bed • 3 bath • 1507 ft²
3 bedroom semi-detached house for sale in St. Peters Avenue, Arlesey, SG15 6UR, SG15 — £450,000 • 3 bed • 2 bath • 1079 ft²
2 bedroom semi-detached house for sale in Eskil Paddock, Hitchin, SG5 — £350,000 • 2 bed • 1 bath • 763 ft²
2 bedroom semi-detached house for sale in Stotfold Road,
Arlesey,
SG15 6XR, SG15 — £377,000 • 2 bed • 1 bath • 622 ft²
3 bedroom end of terrace house for sale in St Johns Road, Arlesey, Bedfordshire, SG15 — £350,000 • 3 bed • 2 bath • 770 ft²
3 bedroom semi-detached house for sale in Stotfold Road,
Arlesey,
SG15 6XR, SG15 — £485,000 • 3 bed • 1 bath • 551 ft²










































































