**Standout Features:**
- **Three Double Bedrooms** with ample storage
- **Spacious Living/Dining Room** ideal for gatherings
- **Versatile Study/Sun Room** for remote work or leisure
- **Garage and Off-Road Parking** for added convenience
- **Private Rear Garden** offering outdoor relaxation
- **No Forward Chain** - move in quickly
**Potential Concerns:**
- Requires modernization
- Average size property may not suit larger families
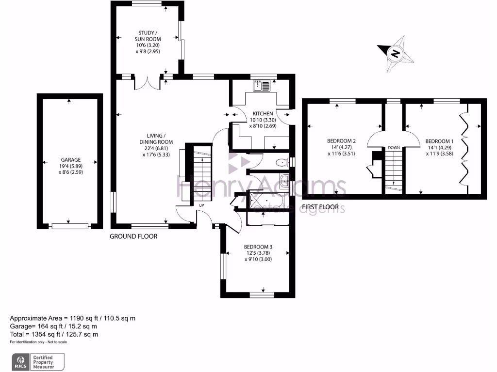
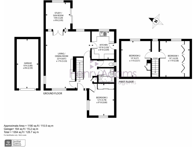
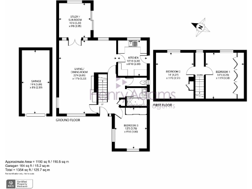
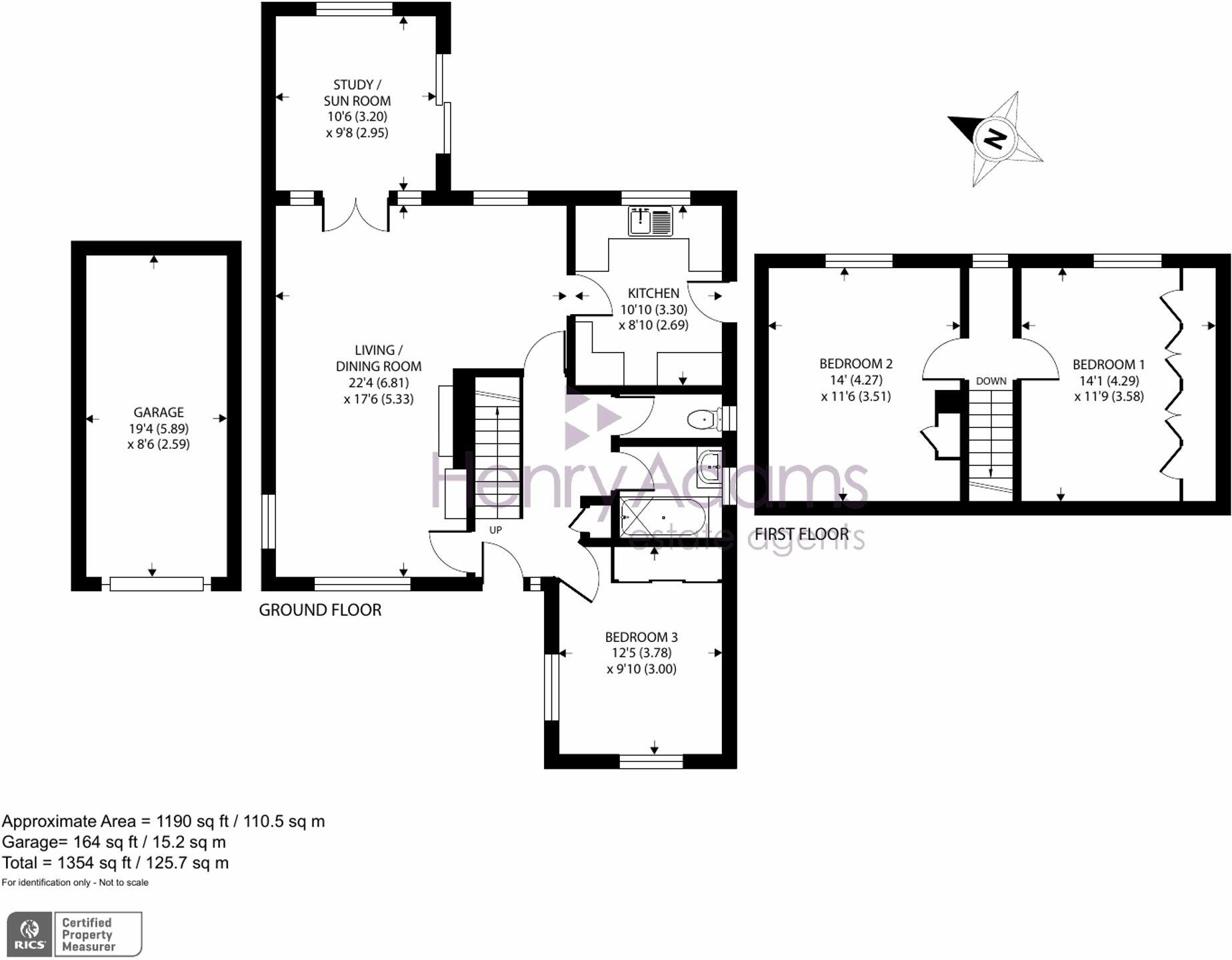
Nestled in the charming suburban area of Sunnymead Close, Selsey, this detached house presents a unique opportunity for buyers looking to personalize their new home. The spacious living and dining room is perfect for entertaining or enjoying quiet family time. With three generous double bedrooms, all equipped with storage, space is abundant. A bonus study/sun room provides an ideal setting for home office needs or relaxation.
The property boasts a private rear garden, perfect for outdoor gatherings or peaceful evenings, along with a garage and off-road parking for your convenience. While the house requires some modernization, this offers an exciting chance to put your own stamp on it. Situated in a low-crime area with good local schools and amenities nearby, it’s an excellent prospect for families or first-time buyers looking for a comfortable, family-friendly home. Don’t miss out on making this property your own—schedule a viewing today!
3 bedroom detached bungalow for sale in Sunnymead Close, Selsey, PO20 — £375,000 • 3 bed • 1 bath • 904 ft²
3 bedroom detached house for sale in Malthouse Road, Selsey, PO20 — £350,000 • 3 bed • 2 bath • 808 ft²
3 bedroom detached house for sale in Broad View, Selsey, PO20 — £399,500 • 3 bed • 2 bath • 953 ft²
4 bedroom detached house for sale in Woodland Road, Selsey, PO20 — £474,950 • 4 bed • 1 bath • 1923 ft²
4 bedroom detached house for sale in Lifeboat Way, Selsey, PO20 — £650,000 • 4 bed • 2 bath • 1487 ft²
3 bedroom detached house for sale in Grafton Road, Selsey, PO20 — £325,000 • 3 bed • 2 bath • 1004 ft²


























































