Comfortable five-bedroom house near village amenities and good schools.
Five double bedrooms including master suite with balcony and ensuite
Open-plan rear living with lantern ceiling and newly fitted island kitchen
Converted garden room for home office, gym or playroom
South-facing enclosed garden and large plot ideal for family use
Private off-street parking via paved driveway
Freehold, about 1,702 sq ft, mains gas central heating
Double glazing installed post-2002; property constructed c.1976–82
Slow broadband and high council tax; partial wall insulation assumed
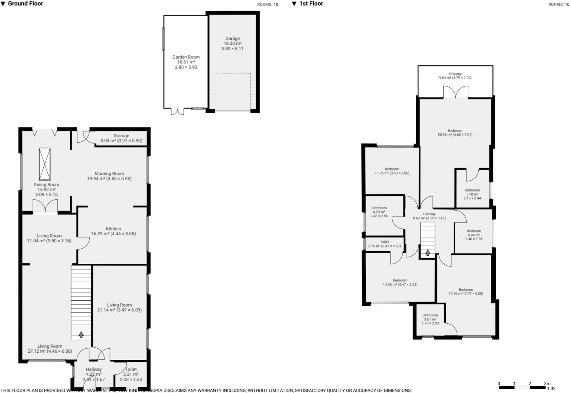
Set on a desirable Ainsdale street, this five-bedroom detached home suits growing families seeking space and convenience. The house extends to about 1,702 sq ft, with a flexible layout that includes a front snug, principal reception room and a large open-plan rear living area capped by a lantern ceiling. A newly fitted kitchen with island and an adjoining utility and WC make day-to-day family life straightforward.
The first-floor master suite is a standout: an en-suite bathroom and private balcony overlooking the south-facing garden provide a quiet retreat. Four further double bedrooms and two additional bathrooms give comfortable sleeping accommodation for a full family. A converted garden room offers useful flexible space for a home office, gym or playroom.
Practical features include private off-street parking, double glazing installed post-2002 and mains gas central heating via boiler and radiators. The property is freehold and located within a sought-after school catchment and good transport links to Liverpool and Southport, making it well placed for commuting and family life.
Notable considerations: the house dates from the late 1970s/early 1980s and has cavity walls with only partial insulation assumed, so further insulation or energy upgrades may be beneficial. Broadband speeds are reported as slow in the area and council tax is described as expensive. These factors are worth factoring into running-cost plans alongside any cosmetic updating you might choose.
5 bedroom detached house for sale in Carlton Road, Ainsdale, Southport, PR8 — £650,000 • 5 bed • 1 bath • 2120 ft²
5 bedroom detached house for sale in Shore Road, Ainsdale, Southport, Merseyside, PR8 — £875,000 • 5 bed • 4 bath • 4000 ft²
5 bedroom detached house for sale in Gleneagles Drive, Southport, Merseyside, PR8 — £500,000 • 5 bed • 3 bath • 1910 ft²
4 bedroom detached house for sale in Hillsview Road, Ainsdale, Merseyside, PR8 — £525,000 • 4 bed • 3 bath • 339 ft²
4 bedroom detached house for sale in Carlton Road, Southport, Merseyside, PR8 — £650,000 • 4 bed • 1 bath • 650 ft²
4 bedroom detached house for sale in Thirlmere Drive, Southport, Merseyside, PR8 3TY, PR8 — £475,000 • 4 bed • 3 bath • 2146 ft²






























































































































































































