**Standout Features:**
- 70% shared ownership for over 50's
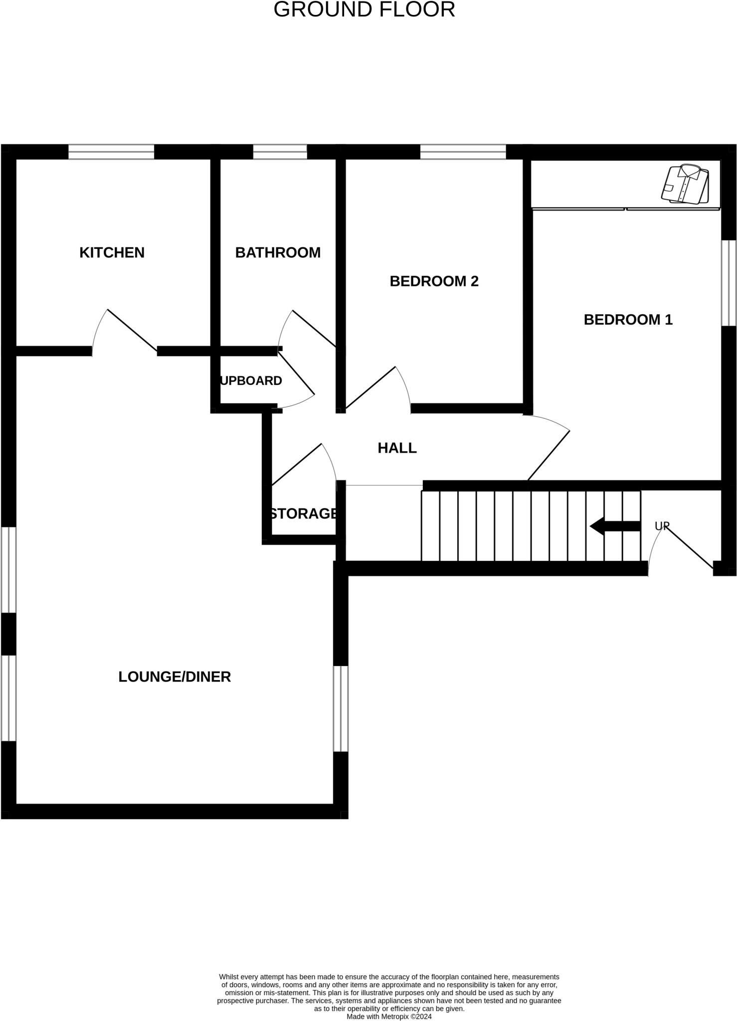
- Two bedrooms and one bathroom in a first-floor apartment
- Well-maintained with double glazing and gas central heating
- Attractive communal gardens and resident parking
- Located in desirable Wilmslow, near quality schools and amenities
**Potential Concerns:**
- Requires kitchen modernization
- Some flooring in the living room needs updating
- 99 years remaining on the lease
Discover a comfortable and accessible living opportunity in this inviting first-floor apartment, ideally tailored for the over 50s. With a 70% shared ownership option at an attractive price of £119,000, potential buyers can enjoy a cozy living environment featuring a lounge/diner, two bedrooms, and a bathroom. The apartment boasts double glazing and mains gas central heating, ensuring warm and efficient living.
Nestled in a desirable area of Wilmslow, residents can take pleasure in well-kept communal gardens and parking. While the kitchen may require modernization to match contemporary standards, the overall layout encourages easy living with its functional design. The property falls within proximity to reputable schools and essential amenities, making it an excellent choice for retirees seeking a blend of tranquility and convenience. With reasonable monthly service charges, this charming apartment provides a unique opportunity for those looking to settle in a welcoming community. Don’t miss your chance to make this space your own!
2 bedroom apartment for sale in Nightingale Close, Wilmslow, Cheshire, SK9 — £126,000 • 2 bed • 1 bath
2 bedroom apartment for sale in Nightingale Close, Wilmslow, Cheshire, SK9 — £126,000 • 2 bed • 1 bath • 582 ft²
2 bedroom flat for sale in Acorn Mews, 142A Dialstone Lane, Stockport, SK2 6GB, SK2 — £112,500 • 2 bed • 1 bath • 566 ft²
1 bedroom apartment for sale in 28 Heathermount, Altrincham, WA14 — £104,000 • 1 bed • 1 bath • 539 ft²
2 bedroom flat for sale in Henbury Road, Handforth, Wilmslow, SK9 — £114,950 • 2 bed • 1 bath • 588 ft²
1 bedroom retirement property for sale in 85 Coare Street,
Macclesfield,
Cheshire,
SK10 1HZ, SK10 — £176,250 • 1 bed • 1 bath • 631 ft²






































