### Standout Features:
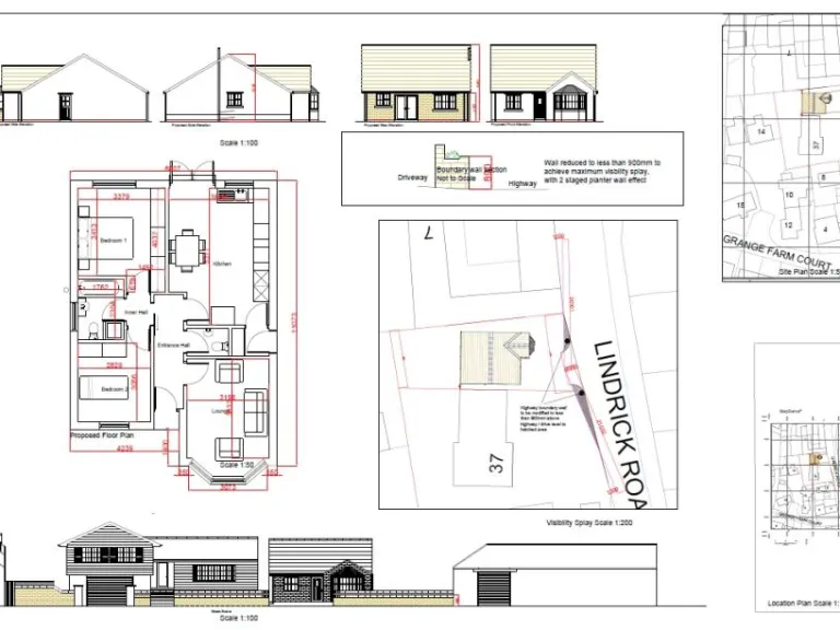
- **Planning Permission**: Conditional grant for a two-bedroom detached bungalow (Ref: RB2024/0462).
- **Sought-After Location**: Situated on Lindrick Road, Woodsetts, a quaint and affluent village in South Yorkshire.
- **Generous Plot Size**: Provides ample space for residential development.
- **Garden & Garage**: Potential for a private garden and garage included in plans.
- **Low Crime Rates**: The area is known for its safety and community charm.
### Summary:
This rare opportunity to acquire a development plot in the highly sought-after village of Woodsetts offers conditional planning permission for a charming two-bedroom detached bungalow. Exploring this extensive plot means you'll have the flexibility to create your ideal home, tailored to your design preferences and lifestyle needs. The property, set in an idyllic rural environment, enjoys low crime rates, fast broadband speeds, and proximity to local amenities, making it particularly appealing for families or investors looking for a lucrative residential project.
While the land is devoid of existing structures, its location and potential make it a prime canvas for building. The surrounding landscape features well-maintained greenery, ensuring a serene setting for your future home. This opportunity may not last long, so if you’ve been dreaming of a bespoke bungalow in a tranquil yet affluent area, this plot is worth serious consideration. Don't miss out on making this vision a reality!
Land for sale in Building Plot, Queens Road, Carlton in Lindrick S81 — £55,000 • 1 bed • 1 bath
Plot for sale in Building Plots, Bawtry Road, Blyth, Worksop, Nottinghamshire, S81 8HG, S81 — £300,000 • 1 bed • 1 bath
Land for sale in Portland Road, Langwith, Mansfield, Nottinghamshire, NG20 — £45,000 • 1 bed • 1 bath • 1414 ft²
Land for sale in Queens Road, Carlton-in-Lindrick, Worksop, Nottinghamshire, S81 9LL, S81 — £55,000 • 1 bed • 1 bath
Land for sale in Bawtry Road, Blyth, Worksop, S81 — £750,000 • 1 bed • 1 bath
Land for sale in High Street, South Anston, S25 — £695,000 • 5 bed • 1 bath • 6900 ft²










