Chain-free detached bungalow on a large secluded plot with strong renovation potential..
Chain free four-bedroom detached bungalow on large secluded plot
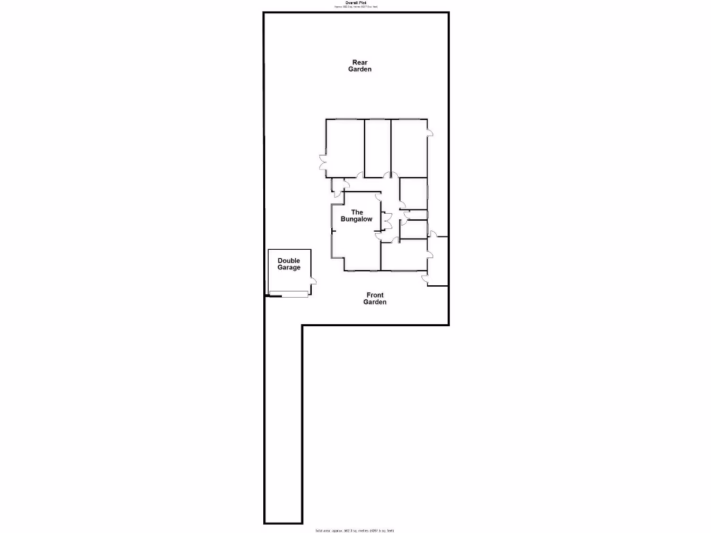
Double garage with ample driveway parking and long private approach
Spacious layout with bay-window living room and separate dining room
Requires full renovation and modernisation throughout
Two planning applications were dismissed at appeal — planning constraints
Solid-brick walls likely uninsulated; EPC rating E, energy upgrades needed
Very slow broadband speeds despite excellent mobile signal
Council Tax Band F — relatively expensive ongoing costs
Set back from Woodmere Avenue on a long driveway, this four-bedroom detached bungalow sits on a large, secluded plot offering ample privacy and outdoor space. The property is chain free and features a double garage, wide parking area and generous wrap-around gardens—appealing to families wanting outdoor room or investors seeking redevelopment potential. The accommodation is traditionally laid out with a bay-windowed living room, separate dining room, and an attractive fitted kitchen, but the house requires a programme of renovation throughout.
The location is one of the bungalow’s strongest assets: a popular, tree-lined residential road close to local shops on Wickham Road, regular bus routes to East Croydon (connections to London Bridge, Victoria and Gatwick), and Eden Park station within approximately 1.4 miles. Several well-rated primary and secondary schools are within easy reach, making the house suitable for families. The area is affluent and low-crime, with parks and golf courses nearby.
There is clear scope to enlarge or reconfigure the property, evidenced by two recent planning applications submitted to Croydon Council (Refs 22/01806/FUL and 21/02212/FUL) that were dismissed at appeal. These decisions do not preclude future schemes but indicate planning constraints should be considered. The bungalow’s solid brick walls likely lack cavity insulation and its EPC is E, so energy-efficiency upgrades would be sensible.
Practical drawbacks are straightforward: the house needs renovation throughout, broadband speeds are very slow, the council tax band is high (Band F), and some original fabric and glazing remain with unknown fitment dates. For buyers seeking a ready-to-move-in home this is not ideal; for renovators or developers it offers a rare plot size and flexible footprint in a desirable location.
3 bedroom detached bungalow for sale in Tandridge Gardens, South Croydon, CR2 — £615,000 • 3 bed • 2 bath • 1436 ft²
4 bedroom bungalow for sale in Oakview Grove, Shirley, Croydon, Surrey, CR0 — £900,000 • 4 bed • 3 bath • 2100 ft²
2 bedroom bungalow for sale in Worcester Close, Shirley, Croydon, CR0 — £625,000 • 2 bed • 1 bath • 861 ft²
3 bedroom detached house for sale in Harriet Gardens, Croydon, CR0 — £600,000 • 3 bed • 1 bath • 1344 ft²
2 bedroom bungalow for sale in Addisons Close, Croydon, CR0 — £550,000 • 2 bed • 1 bath • 1131 ft²
2 bedroom bungalow for sale in Woodmere Avenue, Croydon, CR0 — £575,000 • 2 bed • 1 bath • 824 ft²






















































