**Standout Features:**
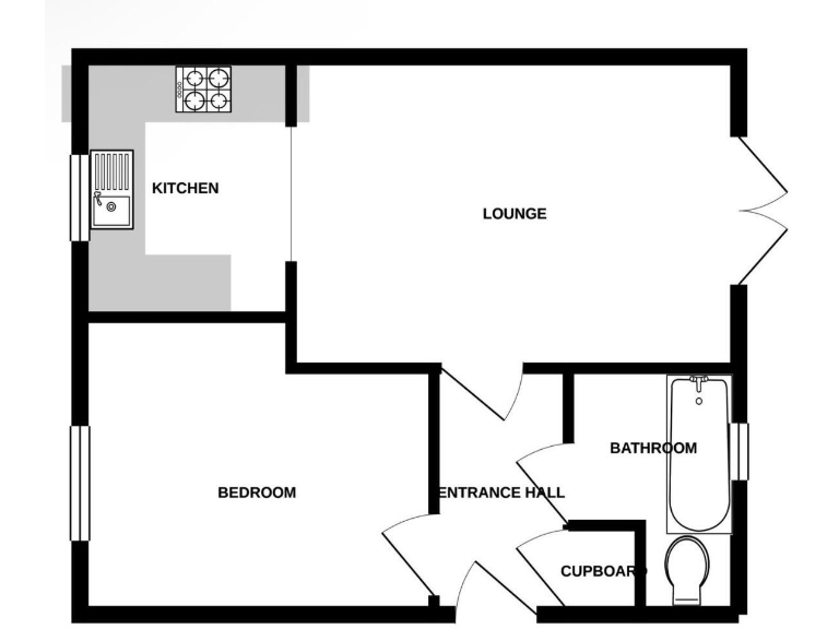
- Beautifully presented one-bedroom flat
- Spacious lounge with Juliet balcony
- Modern fitted kitchen
- Allocated off-street parking 
- Communal gardens and areas 
- Close proximity to local amenities and good transport links 
Discover a fantastic opportunity to own this contemporary one-bedroom apartment in the highly desirable Broughton area of Milton Keynes, ideally suited for first-time buyers, families, or savvy investors. Brimming with charm, this high-standard flat features a spacious lounge complete with a Juliet balcony, perfect for enjoying morning coffee or evening relaxation. The modern fitted kitchen and a well-appointed family bathroom add to its appeal, while communal gardens and allocated parking provide added convenience.
Situated in a vibrant urban setting, you'll appreciate the nearby shops, schools, and parks, making this an ideal base for everyday living. Although the property enjoys excellent broadband speeds and low council tax, it's important to note the £1,344 service charge. With 107 years remaining on the lease, this apartment offers flexibility for future renovations or extensions to suit your unique lifestyle needs. Don’t miss out on this gem; the combination of prime location and quality living won’t stay on the market for long!
 1 bedroom flat for sale in Staverton Grove, Broughton, Milton Keynes, MK10 — £150,000 • 1 bed • 1 bath • 722 ft²
 1 bedroom flat for sale in Staverton Grove, Broughton, Milton Keynes, MK10 — £150,000 • 1 bed • 1 bath • 722 ft² 2 bedroom apartment for sale in Laxfield Drive, Broughton, Milton Keynes, MK10 — £200,000 • 2 bed • 1 bath • 682 ft²
 2 bedroom apartment for sale in Laxfield Drive, Broughton, Milton Keynes, MK10 — £200,000 • 2 bed • 1 bath • 682 ft² 2 bedroom apartment for sale in Tanfield Lane, Milton Keynes, MK10 — £200,000 • 2 bed • 2 bath • 899 ft²
 2 bedroom apartment for sale in Tanfield Lane, Milton Keynes, MK10 — £200,000 • 2 bed • 2 bath • 899 ft² 2 bedroom flat for sale in Staverton Grove, Broughton, Milton Keynes, Buckinghamshire, MK10 — £190,000 • 2 bed • 2 bath • 590 ft²
 2 bedroom flat for sale in Staverton Grove, Broughton, Milton Keynes, Buckinghamshire, MK10 — £190,000 • 2 bed • 2 bath • 590 ft² 1 bedroom apartment for sale in Tanfield Lane, Broughton, Milton Keynes, MK10 — £150,000 • 1 bed • 1 bath • 415 ft²
 1 bedroom apartment for sale in Tanfield Lane, Broughton, Milton Keynes, MK10 — £150,000 • 1 bed • 1 bath • 415 ft² 2 bedroom flat for sale in Countess Way, Broughton, MK10 — £250,000 • 2 bed • 2 bath • 658 ft²
 2 bedroom flat for sale in Countess Way, Broughton, MK10 — £250,000 • 2 bed • 2 bath • 658 ft²










































