W3 6QX - High street retail property for sale in High Street, London…

View on Property Piper

High street retail property for sale in High Street, London, W3

Summary - High Street, London, W3 W3 6QX

1 bed 1 bath Retail Property (high street)

**Standout Features:**
- Freehold investment opportunity in Acton, W3
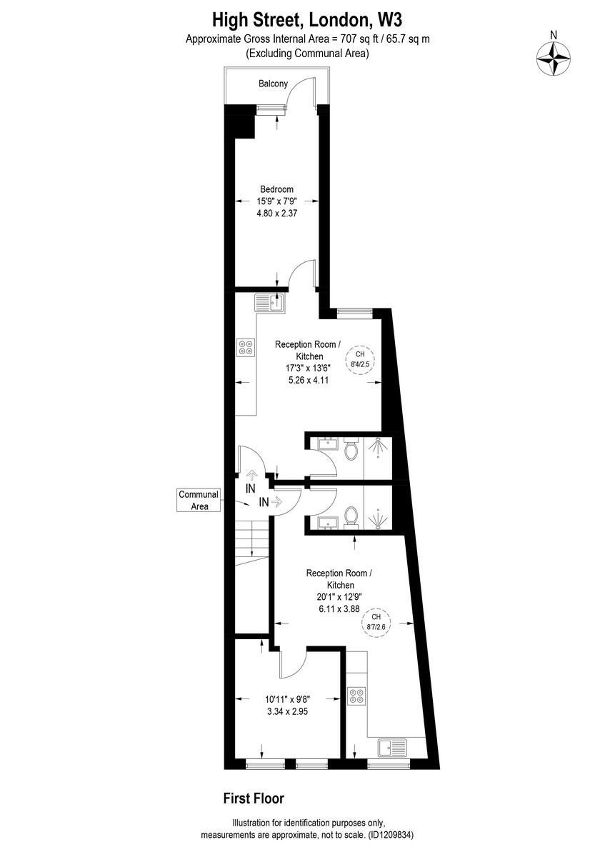
- Total gross income of £68,400 per annum
- Ground floor commercial unit let for £30,000 p.a. on a 10-year lease
- Two 1-bedroom flats, each generating £19,200 p.a.
- Exceptional location on a high street with significant pedestrian traffic
- Excellent transport links via Acton Town Underground station

**Overview:**
Unlock the potential of this lucrative freehold investment located in the vibrant heart of Acton. With a staggering gross income of £68,400 per annum, this property features a prominent ground floor commercial unit, currently let at £30,000 p.a., paired with two well-appointed 1-bedroom flats generating an additional £38,400 p.a. The retail space benefits from an early 20th-century brick facade and offers excellent visibility, making it a prime spot for business endeavors.

The dual-income setup makes it attractive for both seasoned and first-time investors, while young families and students will appreciate the nearby amenities and reputable schools, including several rated Outstanding by Ofsted. The area is witnessing significant regeneration, bolstering property values and demand. However, potential buyers should be aware that the crime rate is very high, which may be a consideration for those prioritizing safety.

Take advantage of this unique opportunity in Acton's cosmopolitan setting, where accessibility to central London and a dynamic mix of shops, restaurants, and community services come together. This property is chain-free, allowing for swift transactions—don’t miss out on this outstanding investment.

Property Details

Image Descriptions

Floorplan Description

Rooms

Textual Property Features

Detected Visual Features

Nearby Schools

Nearest Bars And Restaurants

,,,,}

Nearest General Shops

,,}

Nearest Grocery shops

,,}

Nearest Supermarkets

,,}

Nearest Religious buildings

,,}

Nearest Medical buildings

,,,}

Nearest Airports

,}

Nearest Leisure Facilities

,,,,}

Nearest Tourist attractions

,,}

Nearest Train stations

,,,,}

Nearest Bus stations and stops

,,,,}

Nearest Hotels

,,}

Tags

Local Market Stats

AirBnB Data

Similar Properties

Meta

High Res Images

Compatible Images

Low res Images

Thumbnails

Raw Images

High Res Floorplan Images

Compatible Floorplan Images

Low res Floorplan Images

FloorplanImages Thumbnail

Raw Floorplan Images