Elegant period home with modern kitchen and easy-care garden.
Double-fronted Georgian townhouse with period features
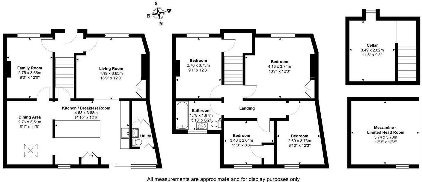
A striking double-fronted Georgian townhouse blending period character with carefully executed modern upgrades. The owners have sympathetically reconfigured the layout and installed a bespoke kitchen with quartz surfaces, integrated appliances and underfloor heating, creating a bright, social ground floor that opens onto a low-maintenance landscaped garden and sun terrace.
Accommodation includes an attractive living room with a log-burning stove, a flexible family room with fitted storage, a useful cellar currently used as a home office/gym (also with underfloor heating), and four bedrooms served by a well-finished family bathroom. The property is freehold, within easy walking distance of Shrewsbury town centre, local rail services and riverbank walks.
Practical points: the house was constructed before 1900 with solid brick walls and is assumed to have no cavity insulation; buyers may wish to consider energy upgrade costs. The rear garden and plot are modest in size, and local crime is reported as above average. Council Tax band D and mains services are understood to be connected; none of the services have been tested here.
This home will suit families who value period proportions, convenient town-centre living and move-in-ready presentation, while buyers prioritising a large private plot or maximum thermal efficiency should note the garden size and likely insulation limitations.
3 bedroom terraced house for sale in Abbey Foregate, Shrewsbury, SY2 — £290,000 • 3 bed • 1 bath • 1109 ft²
3 bedroom town house for sale in Claremont Hill, Town Centre, Shrewsbury, SY1 — £400,000 • 3 bed • 1 bath • 1083 ft²
4 bedroom town house for sale in 10 Cross Hill, Shrewsbury SY1 1JH, SY1 — £515,000 • 4 bed • 3 bath • 2321 ft²
6 bedroom detached house for sale in Mount Street, Shrewsbury, SY3 — £645,000 • 6 bed • 3 bath • 2484 ft²
2 bedroom terraced house for sale in St. Johns Row, Murivance, Shrewsbury, SY1 1JP, SY1 — £295,000 • 2 bed • 1 bath
5 bedroom town house for sale in Noble Street, Wem, SY4 — £590,000 • 5 bed • 3 bath • 2099 ft²


























































