Sunny garden and commuter convenience close to station.
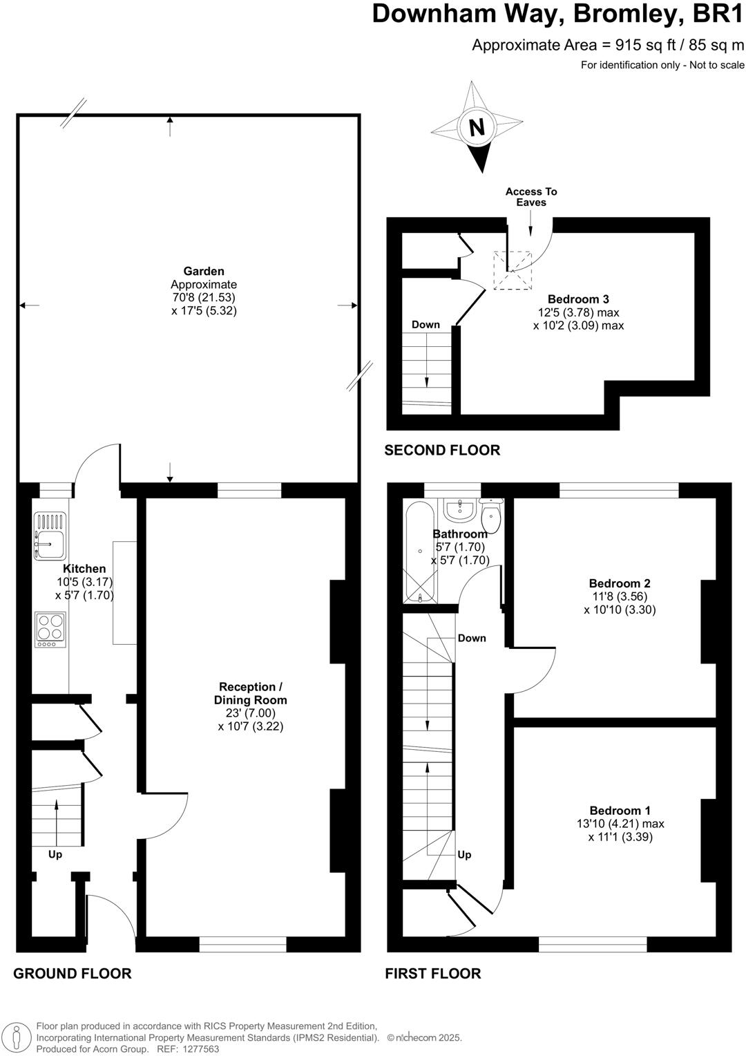
Three double bedrooms across three floors
A well-proportioned three double-bedroom mid‑terrace arranged over three floors, this BR1 home blends period features with bright contemporary living. The open-plan living/dining room and original details give character, while large windows and a south-facing garden deliver good natural light and outdoor space for families. Commuters benefit from a short walk to Grove Park station and fast links into central London.
The property sits on a modest plot of approximately 915 sq ft and offers potential to extend (STPP), creating scope for added living space or value uplift. The boiler and mains gas central heating are in place, and double glazing is installed, though wall insulation appears missing — presenting an efficiency improvement opportunity. The EPC is rated D, so upgrading insulation and services could reduce running costs and improve comfort.
Practical factors to note: the area has above-average crime levels and is recorded as very deprived, which may affect long‑term resale dynamics for some buyers. The home is freehold with affordable council tax and no flood risk. For families, local schools include several rated Good and one top independent option within reasonable reach.
Overall this is a sensible choice for a growing family or a commuter couple seeking a ready-to-live-in house with scope to modernise and extend. Buyers wanting a fully turn-key, high-efficiency home should allow budget for insulation and potential energy upgrades.
3 bedroom terraced house for sale in Ravenscar Road, Bromley, BR1 — £450,000 • 3 bed • 1 bath • 926 ft²
3 bedroom semi-detached house for sale in Chatsworth Avenue, Bromley, BR1 — £599,950 • 3 bed • 1 bath • 905 ft²
3 bedroom end of terrace house for sale in Galahad Road, Bromley, BR1 — £415,000 • 3 bed • 1 bath • 801 ft²
4 bedroom terraced house for sale in Clayhill Crescent, Mottingham, SE9 — £500,000 • 4 bed • 2 bath • 1051 ft²
3 bedroom terraced house for sale in Cinderford Way, Bromley, BR1 — £450,000 • 3 bed • 2 bath • 864 ft²
3 bedroom terraced house for sale in Roundtable Road, Bromley, BR1 — £425,000 • 3 bed • 1 bath • 823 ft²






































































