Chain-free two-bedroom cottage with courtyard garden and renovation potential in picturesque Brill.
- Two generous double bedrooms with dual-aspect light
- Living room with wood-burning stove
- Kitchen/dining room dated; requires modernisation
- Downstairs WC plus separate utility room
- Chain free for a quicker purchase
- Large plot with private courtyard garden
- Oil-fired central heating; consider fuel and servicing costs
- Solid brick walls likely need insulation improvements
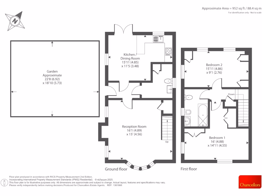
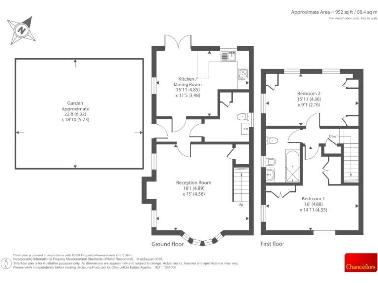
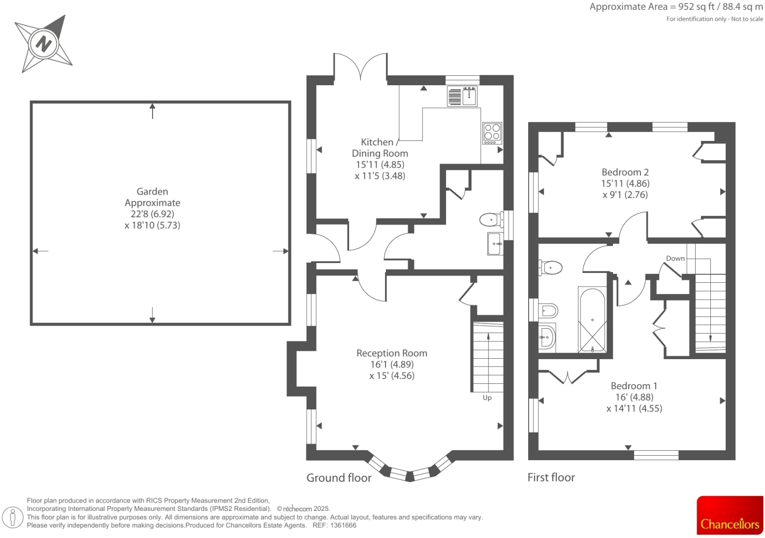
Set in the sought-after hilltop village of Brill, this two-bedroom detached house offers a light-filled layout and a large plot with a private courtyard garden. Living room with a wood-burning stove and dual-aspect rooms give a comfortable, village-home feel. The property is offered chain free, making it suitable for buyers seeking a quick move.
Practicalities include oil-fired central heating to radiators and double glazing; the property was built in the 1950s–1960s with solid brick walls and likely lacks modern cavity insulation. The kitchen and some internal finishes date from the 1980s–1990s and will need updating to meet contemporary expectations. There is a downstairs WC, utility room and family bathroom serving two generous double bedrooms.
This house will appeal to buyers wanting a characterful countryside home with renovation potential, or families seeking proximity to a highly regarded primary school, local shops, and village amenities. Note the oil fuel, likely wall insulation upgrade needed, and moderate council tax — factors to budget for when assessing running costs and any planned improvements.
3 bedroom semi-detached house for sale in Brill, Buckinghamshire, HP18 — £450,000 • 3 bed • 1 bath • 1232 ft²
2 bedroom end of terrace house for sale in The Lawns, Brill, HP18 — £360,000 • 2 bed • 1 bath • 673 ft²
4 bedroom semi-detached house for sale in Brae Hill, Brill, HP18 — £550,000 • 4 bed • 1 bath • 1837 ft²
4 bedroom detached house for sale in The Lawns, Brill, HP18 9SN, HP18 — £625,000 • 4 bed • 3 bath • 1490 ft²
3 bedroom terraced house for sale in Brill, Buckinghamshire, HP18 — £550,000 • 3 bed • 1 bath • 1205 ft²
4 bedroom town house for sale in High Street, Aylesbury, HP18 — £850,000 • 4 bed • 2 bath • 2044 ft²






























































































