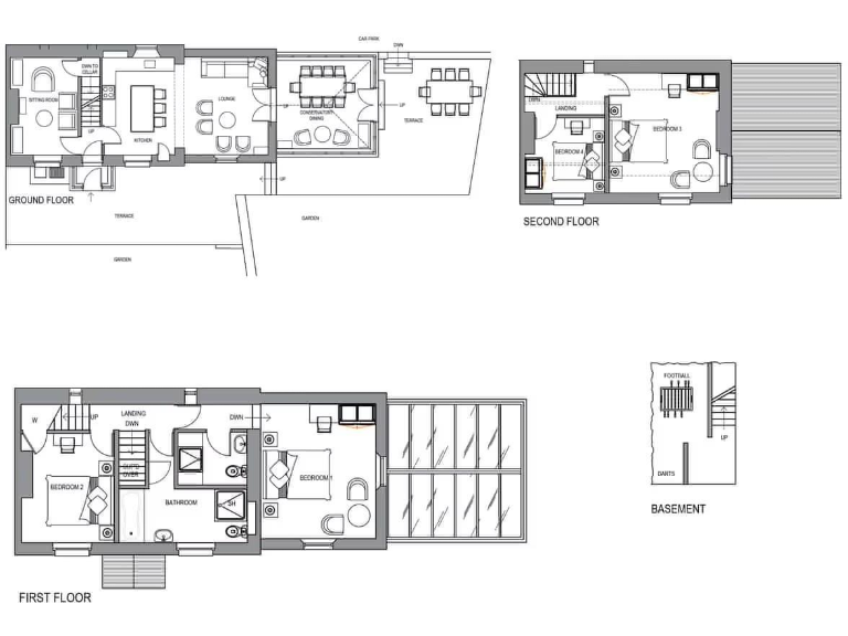
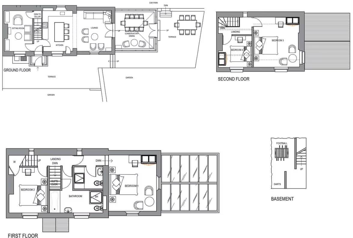
**Standout Features:**
- Four spacious bedrooms, including a master with en-suite
- Newly renovated open-plan living-kitchen with modern finishes
- Generous off-road parking for multiple vehicles
- Beautiful garden with conservatory and stunning views
- Strategic location in the sought-after market town of Bakewell
- Versatile rental potential as a family home, holiday let, or investment
- No onward chain for a smooth transition
This beautifully renovated four-bedroom end of terrace house in the popular market town of Bakewell boasts captivating views of the surrounding countryside, including the nearby golf course and Manners Wood. The modern open-plan living-kitchen is the heart of the home, featuring stylish herringbone flooring, a breakfast island, and large windows inviting natural light and picturesque vistas. Additional highlights include a cozy sitting room with a feature fireplace, a cellar currently used as a games room, and a delightful conservatory that overlooks a spacious landscaped garden perfect for family gatherings.
Families will appreciate the convenience of nearby amenities, including reputable local schools, shops, and recreational facilities, while investors and first-time buyers will be drawn to the property's rental prospects and the promise of a secure, peaceful lifestyle in the scenic Peak District National Park. While the property is in excellent condition, potential buyers should note it is chain-free, enabling a swift move-in process. This unique opportunity is not to be missed—envision your future in this charming home today!
3 bedroom detached house for sale in Butts Road, Bakewell, DE45 — £450,000 • 3 bed • 2 bath • 1209 ft²
4 bedroom semi-detached house for sale in Milford, Bakewell, DE45 — £495,000 • 4 bed • 1 bath • 1432 ft²
4 bedroom semi-detached house for sale in New Gardens, Bakewell, Derbyshire, DE45 — £575,000 • 4 bed • 3 bath • 1875 ft²
3 bedroom semi-detached house for sale in Park Road, Bakewell, DE45 — £330,000 • 3 bed • 1 bath • 1416 ft²
3 bedroom terraced house for sale in Off Monyash Road, Bakewell, DE45 — £340,000 • 3 bed • 1 bath • 788 ft²
3 bedroom semi-detached house for sale in Haddon Road, Bakewell, DE45 — £395,000 • 3 bed • 2 bath • 1206 ft²










































































