**Property Summary:**
- **Location:** Bearsden, G61 3RZ
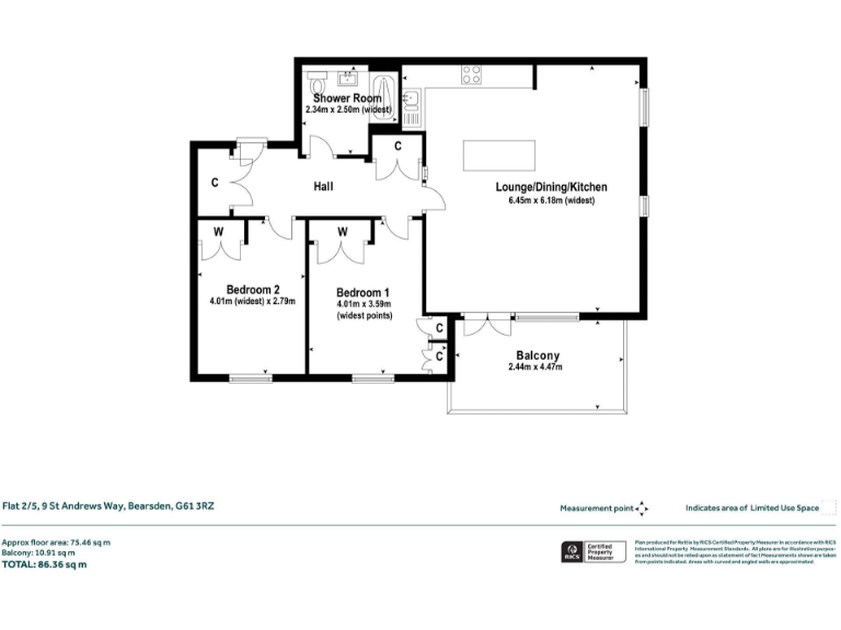
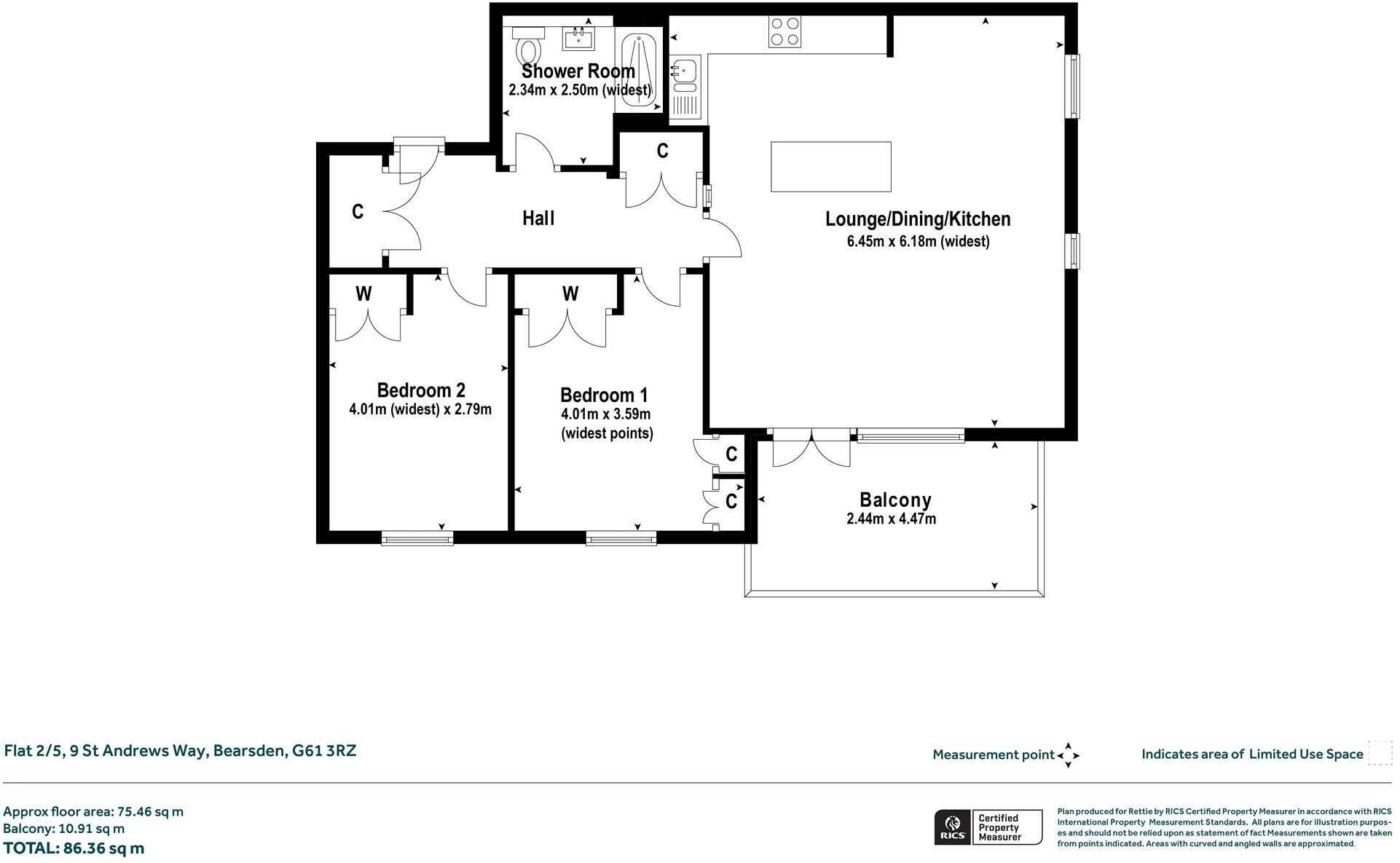
- **Type:** luxurious 2-bedroom second-floor apartment in St. Andrew’s View development
- **Size:** 811 sq. ft.
- **Tenure:** Freehold, chain-free
- **Parking:** Allocated off-street parking
- **Structural Features:** Award-winning design by Studio Bark Architects, lift access, security-controlled entrance
- **Current Condition:** Modern interior with parquet-style flooring and UPVC windows
This exceptional two-bedroom apartment, nestled in the prestigious St. Andrew’s View development, offers luxury and comfort specifically crafted for those aged sixty and over. Spanning over 811 square feet, this modern flat boasts a corner position, providing a sun-drenched balcony perfect for enjoying tranquil days. The property features a well-thought-out layout including a spacious lounge with French doors, an open-plan dining area, and a contemporary kitchen with integrated appliances.
Designed for convenience, the apartment includes a security-controlled entrance, a lift for easy access, and a dedicated allocated parking space. The well-maintained interiors include charming parquet-style flooring and an immaculate tiled shower room.
Located just a mile from Bearsden Cross, residents will enjoy easy access to a plethora of amenities, including shops, restaurants, and transport links to Glasgow and beyond. With a strong sense of community, recreational facilities, and proximity to golf clubs and a ski club, this property is perfect for those seeking a comfortable lifestyle in an affluent suburb.
While the apartment holds many positives, the council tax band is classified as expensive, which is important for potential buyers to note. In this highly sought-after area, opportunities like this are rare—don’t miss your chance to secure a piece of luxury living in Bearsden!
2 bedroom flat for sale in St Andrews Way, Bearsden G61 — £260,000 • 2 bed • 1 bath • 829 ft²
2 bedroom flat for sale in 43 Elderbank, Bearsden, G61 1ND, G61 — £195,000 • 2 bed • 2 bath • 861 ft²
2 bedroom flat for sale in College Gate, Bearsden, G61 — £185,000 • 2 bed • 1 bath • 689 ft²
3 bedroom apartment for sale in Beechwood Court, Bearsden, G61 — £340,000 • 3 bed • 2 bath • 1164 ft²
2 bedroom apartment for sale in St. Germains, Bearsden, G61 — £260,000 • 2 bed • 2 bath • 862 ft²
3 bedroom apartment for sale in Gartconnell Drive, Bearsden, G61 — £575,000 • 3 bed • 2 bath • 1650 ft²


















































































































