Substantial energy‑efficient family home plot within a private castle estate near Glasgow.
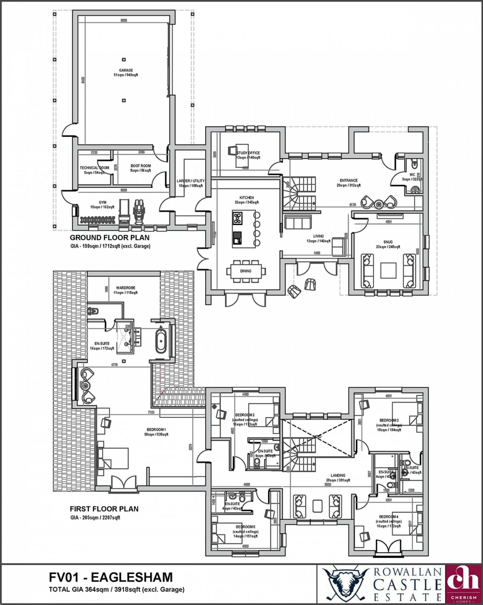
• 4,467 sq ft five‑bedroom house on approximately 0.55 acre plot
• High specification: triple glazing, MVHR, underfloor heating, air‑source heat pump
• Dramatic glazed entrance, large open plan living/kitchen/dining area
• 50m² adjoined double garage and private gated estate access
• Planning granted for optional orangery; bespoke designs possible subject to planning
• Only one bathroom currently recorded — confirm final sanitary layout
• Very slow broadband speeds; rural location with limited local services
• Fixed‑price build options and part‑exchange available
Set within the private, gated Rowallan Castle Estate, Plot 1 ‘The Eaglesham’ offers a large, energy‑efficient family home on roughly 0.55 acres. The 4,467 sq ft design features a dramatic glazed entrance, a high‑ceilinged open plan kitchen/living/dining space, separate snug, home office and an attached 50m² double garage — ideal for rural family life with easy access to Glasgow (c.25 minutes).
The specification targets low running costs and comfort: triple glazing, 30cm insulation, MVHR, underfloor heating and an air‑source heat pump deliver an expected B‑rated EPC and very low energy consumption. The home comes as a design‑and‑build package with fixed construction pricing and planning already granted for an optional orangery; fully bespoke designs can also be considered subject to planning consent.
Important practical notes: the current information lists only one bathroom for a five‑bedroom house — buyers should confirm final sanitary provision in the build specification. Broadband provision is very slow on site, and the wider area classification indicates limited local services; the estate is rural and relatively remote despite excellent mobile signal and estate facilities.
This plot suits buyers seeking a substantial, low‑energy family home in a secure countryside setting, or those wanting a high‑specification bespoke build with the convenience of a managed construction process. The purchase includes access to estate amenities such as a championship golf course and 12‑month complimentary golf membership for new homeowners.
Land for sale in Plot 1 Fairview Rowallan Castle, Kilmaurs, Kilmarnock, KA3 2LP, KA3 — £450,000 • 1 bed • 1 bath • 4467 ft²
6 bedroom detached house for sale in Plot 16 The Giffnock Fairview Rowallan Castle, Kilmaurs, Kilmarnock, KA3 2LP, KA3 — £945,000 • 6 bed • 1 bath • 3488 ft²
House for sale in Rowallan Castle Estate, Kilmaurs, Kilmarnock, KA3 2LP, KA3 — £895,000 • 1 bed • 1 bath • 999 ft²
Land for sale in Plot 18 Fairview Rowallan Castle, Kilmarnock, KA3 2LP, KA3 — £350,000 • 6 bed • 1 bath • 3390 ft²
6 bedroom house for sale in 18, Accessible Home Fairview Rowallan Castle, Kilmarnock, KA3 2LP, KA3 — £975,000 • 6 bed • 1 bath
4 bedroom detached house for sale in Plot 22 The Newton Fairview Rowallan Castle, Kilmaurs, Kilmarnock, KA3 2LP, KA3 — £895,000 • 4 bed • 1 bath • 2734 ft²






















