Spacious village family home with garden and garage.
Extended detached chalet bungalow on generous corner plot
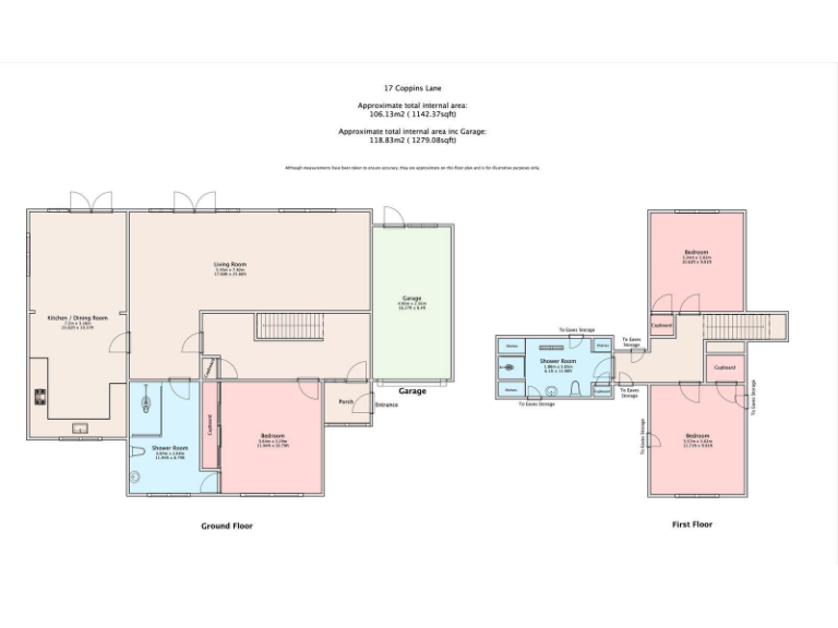
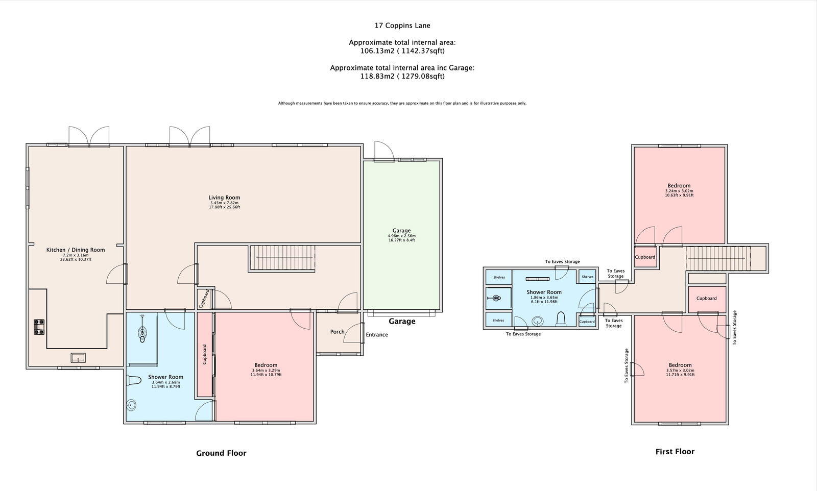
This extended detached chalet bungalow sits on a generous corner plot in desirable Borden village, offered chain free and freehold. The ground-floor layout flows well, with a long living room and a kitchen/diner created by a recent extension — ideal for family life and social cooking. A south-facing garden backs onto farmland, providing extended sun and a pleasant outlook.
Accommodation includes three double bedrooms with the principal on the ground floor, plus two shower rooms. Practical extras include a single garage, large paved driveway, workshop and summer house. The property dates from the mid-20th century and has double glazing installed before 2002 and gas central heating via boiler and radiators.
The location suits families: local primaries and good-rated secondary schools are nearby, plus village amenities such as a pub, plant nursery café and food centre. Road links to the A249, M2 and M20 are quick, and Sittingbourne mainline station is close for rail journeys to London and the Kent coast.
Important considerations: the house reflects its era and will suit buyers willing to modernise parts of the home. Council tax is high for the area and recorded local crime levels are above average. There is no flood risk recorded for the plot.
3 bedroom detached bungalow for sale in Wises Lane, Borden, Sittingbourne, Kent, ME9 — £525,000 • 3 bed • 1 bath • 905 ft²
5 bedroom detached house for sale in Chestnut Street, Borden, Sittingbourne, ME9 — £750,000 • 5 bed • 3 bath • 2335 ft²
4 bedroom bungalow for sale in Coppins Lane, Borden, Sittingbourne, Kent, ME9 8JG, ME9 — £650,000 • 4 bed • 4 bath • 2116 ft²
5 bedroom chalet for sale in Borden Lane, Sittingbourne, Kent, ME10 — £800,000 • 5 bed • 2 bath • 1820 ft²
3 bedroom detached bungalow for sale in Wises Lane, Borden, Sittingbourne, Kent, ME9 — £347,000 • 3 bed • 1 bath • 905 ft²
4 bedroom end of terrace house for sale in Hearts Delight, Borden, Sittingbourne, Kent, ME9 — £380,000 • 4 bed • 1 bath • 1177 ft²






























































































































