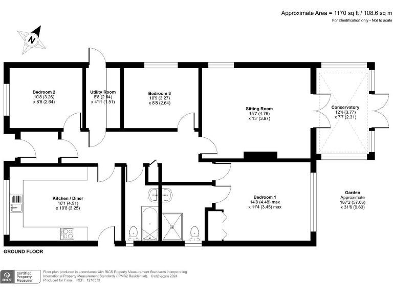
**Standout Features:**
- Three spacious double bedrooms, including a master with en-suite.
- Expansive 187-foot rear garden with scenic countryside views.
- Bright conservatory connected to the sitting room via patio doors.
- Convenient off-road parking for two cars.
- Less than a minute's walk to Blean Primary School (rated Outstanding).
- Chain-free sale; ready for your personal touch.
**Notable Concerns:**
- Requires modernisation and improvement.
- Slower broadband speeds in the area.
This charming three-bedroom detached bungalow in Blean, Canterbury, presents a unique opportunity for families and investors alike. While the property requires some modernisation, it boasts substantial potential, with a large rear garden that invites outdoor activities and relaxation, complete with stunning views. Step inside to find a functional layout featuring a welcoming sitting room, a conservatory perfect for year-round enjoyment, and a spacious kitchen that can accommodate a breakfast table.
Ideal for families, this location is highly desirable due to its proximity to Blean Primary School and other educational institutions, making the morning school run a breeze. The property offers off-road parking, ensuring convenience for both residents and guests. With Canterbury’s vibrant city life just a short distance away, including shopping, dining, and excellent transport links, this bungalow offers a fantastic blend of comfort and accessibility. Embrace the chance to create your dream home in this peaceful, family-friendly neighborhood—opportunities like this don't last long!
2 bedroom detached bungalow for sale in Honey Hill, Blean, Whitstable, CT5 — £365,000 • 2 bed • 1 bath • 851 ft²
3 bedroom detached bungalow for sale in Blean Common, Blean, Canterbury, CT2 — £525,000 • 3 bed • 1 bath • 1470 ft²
3 bedroom detached bungalow for sale in Blean Common, Blean, CT2 — £425,000 • 3 bed • 1 bath • 922 ft²
2 bedroom detached bungalow for sale in Alfreston, Stuppington Lane, Canterbury, CT1 — £425,000 • 2 bed • 1 bath • 1085 ft²
3 bedroom bungalow for sale in Bishops Way, Canterbury, Kent, CT2 — £280,000 • 3 bed • 1 bath • 681 ft²
3 bedroom semi-detached house for sale in Chestnut Avenue, Blean, Canterbury, Kent, CT2 — £325,000 • 3 bed • 1 bath • 811 ft²






























































