**Standout Features:**
- Spacious 3/4 bedroom townhouse over three levels
- South-facing enclosed garden and garage with allocated parking
- Convenient access to nature reserve and reputable schools
- Good condition with modern utilities, including gas central heating
**Potential Downsides:**
- Average room sizes may not accommodate larger furniture
- Limited outdoor space ideal for extensive landscaping
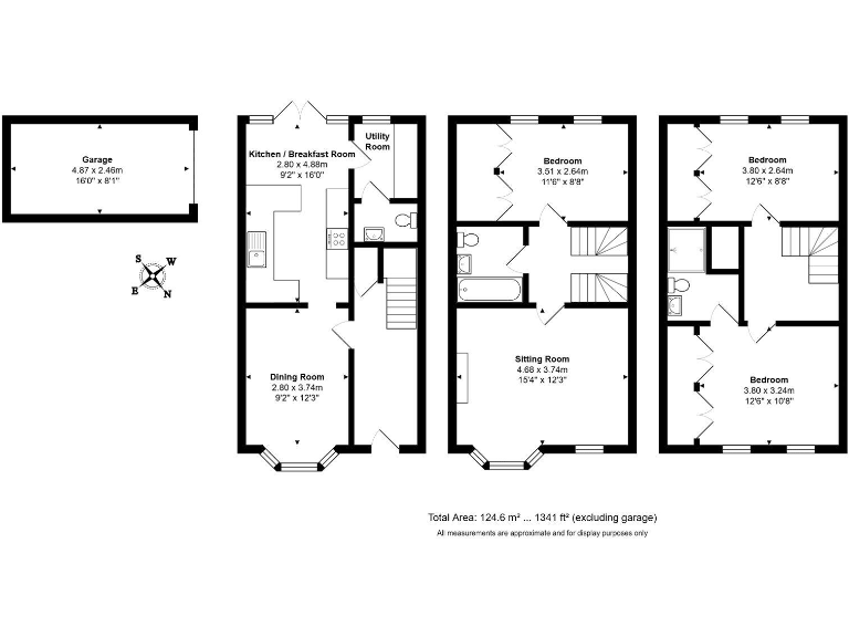
This inviting three-story townhouse on the edge of Devizes offers family-friendly living with an abundance of natural light, thanks to its generous bay windows. With the flexibility to house four double bedrooms, the interior features a welcoming design that encourages both private retreat and social gatherings. The ground floor presents a modern kitchen-diner flowing into a well-maintained south-facing garden, perfect for outdoor living. Convenience is heightened with a utility room and downstairs WC.
Situated in a sought-after residential area, this property is within reach of excellent schooling options and the tranquil Drews Pond Nature Reserve. The first and second floors boast additional bedrooms, including the principal suite with an en-suite shower. Key amenities, including a garage, parking, and low crime rates, make this home not only comfortable but a secure investment for families or first-time buyers. This unique opportunity won’t last long—secure your private viewing today!
4 bedroom detached house for sale in Awdry Road, Devizes, Wiltshire, SN10 5LF, SN10 — £465,000 • 4 bed • 2 bath • 1585 ft²
3 bedroom end of terrace house for sale in Devizes, Wiltshire, SN10 3UE, SN10 — £295,000 • 3 bed • 2 bath • 831 ft²
4 bedroom end of terrace house for sale in Chivers Road, Devizes, SN10 — £310,000 • 4 bed • 2 bath • 1327 ft²
3 bedroom detached house for sale in Leigh Woods Lane, Devizes, Wiltshire, SN10 — £385,000 • 3 bed • 2 bath • 1186 ft²
4 bedroom terraced house for sale in White Horse Way, Devizes, SN10 — £300,000 • 4 bed • 3 bath • 1439 ft²
3 bedroom end of terrace house for sale in Queens Road, Devizes, SN10 — £325,000 • 3 bed • 1 bath • 994 ft²










































































