Generous five-bedroom home with open-plan living and integral double garage.
Chain-free new build with 10-year NHBC Buildmark warranty
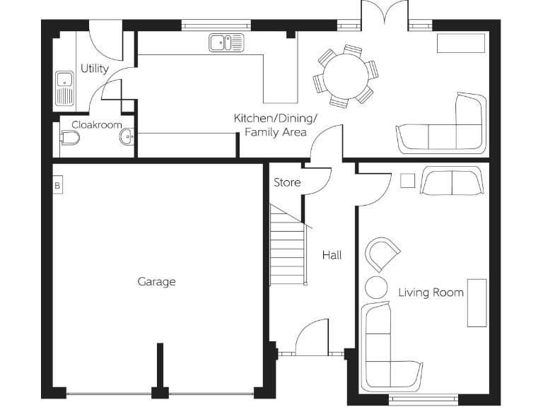
This brand-new five-bedroom detached home (Plot 258, The Sunningdale) offers generous, flexible family living across approximately 1,793 sq ft. The ground floor centres on a large open-plan kitchen, dining and family area with French doors to the garden, plus a separate living room, utility and cloakroom. An integral double garage adds secure parking and storage.
Upstairs the principal bedroom features a Juliet balcony, fitted wardrobe and en suite; bedroom 2 also has an en suite while the remaining bedrooms share the family bathroom. The property is finished with integrated fridge/freezer and dishwasher and comes with a 10-year NHBC Buildmark warranty. The home is sold chain-free and a showhome is available to view.
Practical considerations are transparent: estate management charge is £185 pa, council tax band is yet to be confirmed and broadband is reported as very slow — important if you work from home. The development is in a rural, village setting near Clyde coastline with good mobile signal but local area indicators show relative deprivation; factor local services and travel into your decision.
Overall this is a well-specified, spacious new build suited to growing families wanting modern layout, garage parking and structural warranty cover. The plot offers immediate move-in convenience but buyers who need fast broadband or who prioritise an established local community may wish to investigate connectivity and neighbourhood services further before committing.
4 bedroom detached house for sale in Arrochar Drive,
Bishopton,
PA7 5HP, PA7 — £415,995 • 4 bed • 1 bath • 1382 ft²
4 bedroom detached house for sale in Arrochar Drive,
Bishopton,
PA7 5HP, PA7 — £379,995 • 4 bed • 1 bath • 1203 ft²
3 bedroom detached house for sale in Arrochar Drive,
Bishopton,
PA7 5HP, PA7 — £345,995 • 3 bed • 1 bath • 1040 ft²
4 bedroom detached house for sale in Arrochar Drive,
Bishopton,
PA7 5HP, PA7 — £416,995 • 4 bed • 1 bath • 1382 ft²
3 bedroom detached house for sale in Arrochar Drive,
Bishopton,
PA7 5HP, PA7 — £345,995 • 3 bed • 1 bath • 1072 ft²
3 bedroom detached house for sale in Arrochar Drive,
Bishopton,
PA7 5HP, PA7 — £344,995 • 3 bed • 1 bath • 1072 ft²










































































