Compact characterful home with garden — ideal for first-time buyers or investors.
Bay-fronted Victorian style with original period features
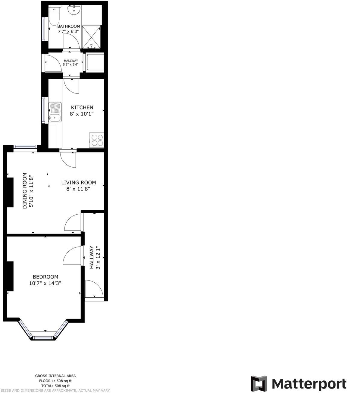
Double bedroom — comfortable size for furniture
Reception room well-proportioned for living and dining
Courtyard-style rear garden — private outdoor space
Kitchen dated (1970s/1980s) and will need modernisation
Leasehold sale; service charge £800 and ground rent £100
Chain free for a quicker transaction
Area has deprivation indicators — consider investment risk
Set on South Ipswich’s Wherstead Road, this bay-fronted one-bedroom maisonette offers a compact, characterful home or straightforward rental. The reception room is well-proportioned and benefits from period features that give a welcoming, traditional feel. A private courtyard-style rear garden adds outdoor space for plants and seating.
The interior is liveable but dated in places — notably the 1970s/1980s-style kitchen — so the property will reward light updating and cosmetic improvement. At about 508 sqft, the layout is traditional and efficient: double bedroom, reception, kitchen, bathroom and ancillary space.
Practical points suit both first-time buyers and investors: low flood risk, excellent mobile signal and fast broadband, plus very low council tax. It is sold leasehold, chain-free, with a below-average service charge (£800) and a modest ground rent (£100).
The immediate area is largely private-renting and terraces/flats; local amenities and bus links are close by. Nearby primary and secondary schools include good-rated options, though one local primary requires improvement. Buyers should note the wider neighbourhood shows signs of deprivation, which may affect long-term capital growth.
1 bedroom maisonette for sale in Hatfield Road, Ipswich, IP3 — £140,000 • 1 bed • 1 bath • 549 ft²
1 bedroom apartment for sale in Partridge Road, Ipswich, IP2 — £135,000 • 1 bed • 1 bath • 517 ft²
1 bedroom maisonette for sale in Britannia Road, Ipswich, IP4 — £100,000 • 1 bed • 1 bath • 385 ft²
1 bedroom apartment for sale in Goldcrest Road, Ipswich, IP2 — £115,000 • 1 bed • 1 bath • 417 ft²
2 bedroom apartment for sale in Bruff Road, Ipswich, IP2 — £125,000 • 2 bed • 1 bath • 679 ft²
1 bedroom maisonette for sale in Mallard Way, Ipswich, Suffolk, IP2 — £110,000 • 1 bed • 1 bath • 579 ft²


































