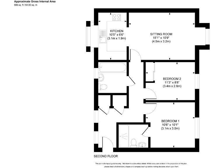
Top-floor two double bedrooms with en-suite to principal bedroom.|Open-plan living room and fitted kitchen with integrated appliances.|Undercover allocated parking space included.|Approx 689 sq ft; comfortable apartment size.|Built 2014, double glazing, gas central heating, EPC B.|Leasehold: 113 years remaining; tenure: leasehold.|Service charge approx £1,620/year; ground rent £125/6 months.|Close to Princess Royal Hospital and commuter routes to London/Brighton.
Set on the top floor of a contemporary 2014 development, this two double-bedroom apartment offers bright, open-plan living and a sensible commuter location. The layout includes a generous entrance hall with built-in storage, a fully fitted kitchen with integrated appliances, a principal bedroom with en-suite, and a second double bedroom — practical for sharers, small families or remote working.
Practical features include an undercover allocated parking space, double glazing, mains gas central heating and an EPC B rating. At around 689 sq ft the apartment feels roomy for its size and is well maintained within a tidy block close to local shops, the Princess Royal Hospital and good transport links to Brighton and London.
Buyers should note this is a leasehold property with 113 years remaining, a service charge of approximately £1,620 per year and a small ground rent (£125 every six months). These costs are typical for modern managed developments but are material to affordability and long-term running costs.
Overall this property offers a low-maintenance, modern home in a very affluent area with fast broadband and very low recorded crime — attractive to first-time buyers seeking space and commuters wanting straightforward onward travel.



















































