Single-level home near beach and hospital, ideal for easy-living buyers.
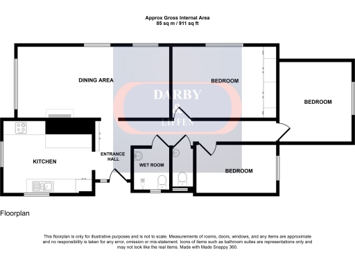
Extended three-bedroom detached bungalow on a decent plot
This extended three-bedroom detached bungalow sits on a decent plot in popular Gorleston, a short walk from the seafront and local amenities. The single-storey layout and garage with side access appeal to buyers seeking easy living, while a modernised kitchen and gas central heating add everyday convenience.
The accommodation provides a lounge, kitchen, three bedrooms, a wet room and separate w.c. UPVC double glazing (installed before 2002) and a filled cavity wall offer basic thermal performance, but parts of the property will benefit from updating and ongoing maintenance. The bungalow was built in the 1950s–60s and reflects that era’s proportions across its 911 sqft footprint.
Externally there is a lawned front garden, block-paved driveway and an enclosed rear garden with patio—good for low-maintenance outdoor use. The garage with electric roller door is a practical bonus for parking and storage. Proximity to James Paget University Hospital and several schools is a genuine convenience, though the location’s inner-city, ageing community profile may not suit buyers seeking a quieter rural setting.
Suitable for downsizers, retirees or buyers seeking a single-storey family home with seaside access, this bungalow offers clear potential to personalise for modern living. Be aware of the need for cosmetic updating in places and that the glazing and some fixtures pre-date recent standards; a viewing will show condition and scope for improvement.
3 bedroom detached bungalow for sale in Elm Avenue, Gorleston, NR31 — £300,000 • 3 bed • 2 bath • 851 ft²
3 bedroom detached bungalow for sale in Brasenose Avenue, Gorleston, Great Yarmouth, NR31 — £260,000 • 3 bed • 1 bath • 856 ft²
3 bedroom detached bungalow for sale in Brasenose Avenue, Gorleston, NR31 — £260,000 • 3 bed • 1 bath • 978 ft²
3 bedroom detached bungalow for sale in Gresham Close, Gorleston, NR31 — £265,000 • 3 bed • 1 bath • 989 ft²
3 bedroom detached bungalow for sale in Paget Crescent, Gorleston, NR31 — £280,000 • 3 bed • 2 bath • 2067 ft²
3 bedroom detached bungalow for sale in Yallop Avenue, Gorleston, NR31 — £410,000 • 3 bed • 2 bath • 1570 ft²






















































