Large family house on about an acre, chain-free with versatile living spaces.
Six double bedrooms and versatile multi-generational layout
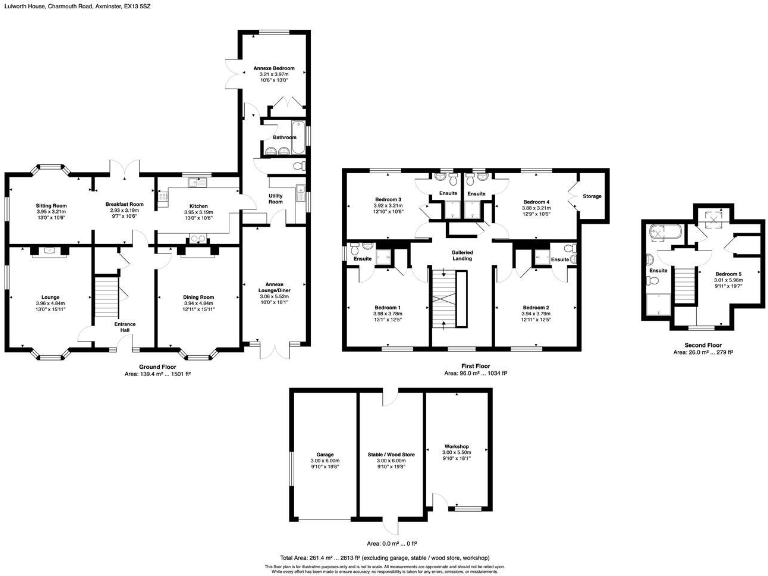
A substantial detached family home arranged over three floors, offering six double bedrooms and flexible ground-floor accommodation ideal for multi-generational living. The heart of the house is a large open-plan kitchen/dining room with granite surfaces, an Aga and French doors onto a sheltered patio that flows to gardens of about one acre.
The property sits privately behind mature screening with a long driveway, garage, workshop and generous parking — practical for several cars and visiting family. Mature lawns, an apple orchard, vegetable plots and a separate bar/entertainment outbuilding create multiple outdoor spaces for entertaining, hobbies or home working. Fast broadband (up to 1800Mbps) supports remote working, though mobile signal can be limited inside the house.
Practical considerations: heating is oil-fired to radiators and the Energy Performance Certificate is D. Council Tax sits in Band G, so running costs are higher than average. The house is chain-free and freehold, and several outbuildings offer scope for adaptation or further development, subject to consents.
This is a home for buyers seeking generous internal space and a very large, private plot in a semi-rural setting, with good local schools and easy access to the Jurassic Coast and Axminster’s amenities. Expect a comfortable, versatile family residence that will suit those wanting space, privacy and potential to personalise.
5 bedroom detached house for sale in Axminster, Devon, EX13 — £685,000 • 5 bed • 2 bath • 1962 ft²
5 bedroom detached house for sale in Harepath Hill, Seaton, EX12 — £1,500,000 • 5 bed • 2 bath • 3467 ft²
5 bedroom detached house for sale in Axminster, Devon, EX13 — £900,000 • 5 bed • 4 bath • 3327 ft²
4 bedroom detached house for sale in Kingsholme, Colyford, Colyton, EX24 — £775,000 • 4 bed • 2 bath • 2953 ft²
3 bedroom semi-detached house for sale in Monkton Wyld, Bridport, Dorset, DT6 — £398,000 • 3 bed • 1 bath • 989 ft²
4 bedroom bungalow for sale in Axminster, Dorset, EX13 — £685,000 • 4 bed • 3 bath • 2800 ft²


































































































































