Energy-efficient semi with garage office and off-street parking.
Two double bedrooms and one family bathroom
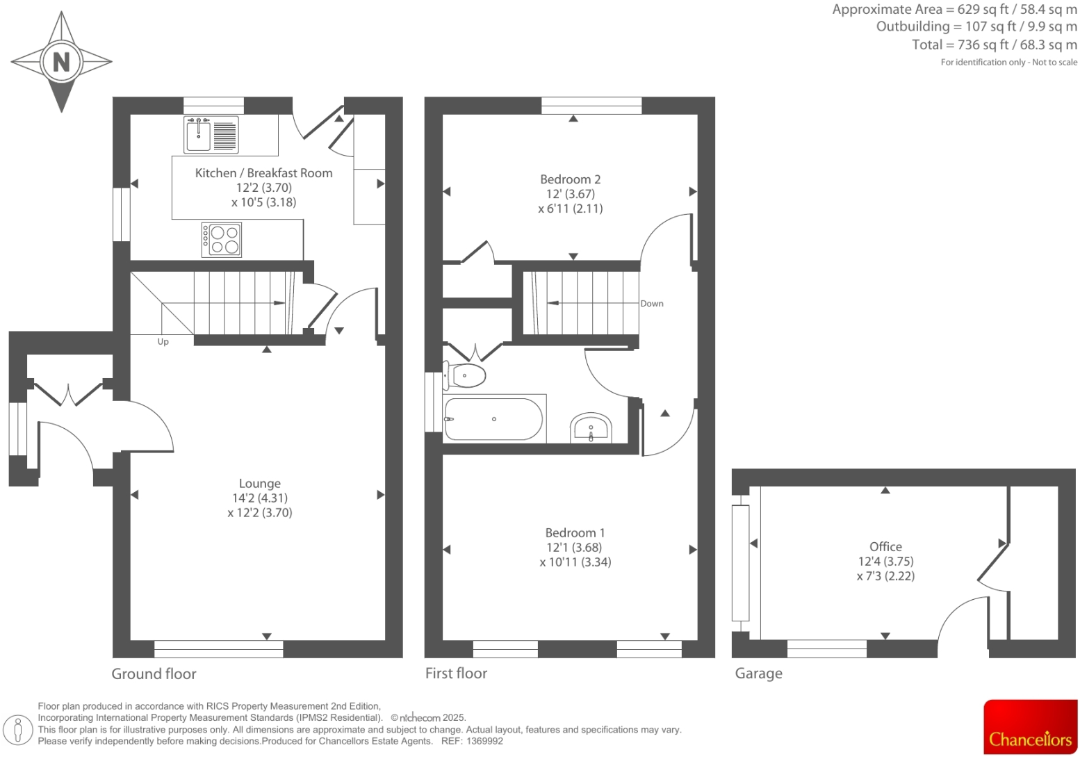
This modern two-bedroom semi-detached house in Thorney Leys offers a straightforward, low-maintenance home for first-time buyers or small families. The property has a practical layout with living room, modern kitchen, and a single bathroom, plus useful garage space currently used as an office and storage. Installed solar panels and double glazing support energy efficiency and lower running costs.
Located in a comfortable suburbia within Witney (OX28), the area is very affluent with very low crime, fast broadband and excellent mobile signal. Nearby primary and secondary schools are rated Good, and local amenities include green spaces, leisure facilities and frequent bus links. Off-street parking and a small garden complete the package for easy everyday living.
Notable points to consider: the house has just one bathroom and a relatively small plot despite being on a corner; it’s an average-sized property at about 736 sq ft. Constructed around 1996–2002, the home will suit buyers seeking a ready-to-live-in property with modest future renovation potential rather than a major project. Tenure is freehold and council tax is described as affordable.
2 bedroom semi-detached house for sale in Thorney Leys, Witney, OX28 — £284,000 • 2 bed • 1 bath • 498 ft²
2 bedroom semi-detached house for sale in Thorney Leys, Witney, OX28 — £335,000 • 2 bed • 1 bath • 519 ft²
4 bedroom semi-detached house for sale in Thorney Leys, Witney, OX28 — £400,000 • 4 bed • 1 bath • 1254 ft²
2 bedroom terraced house for sale in Thorney Leys, Witney, OX28 — £270,000 • 2 bed • 1 bath • 603 ft²
1 bedroom terraced house for sale in Thorney Leys, Witney, Oxfordshire, OX28 — £215,000 • 1 bed • 1 bath • 527 ft²
2 bedroom terraced house for sale in Thorney Leys, WITNEY, OX28 — £315,000 • 2 bed • 1 bath • 599 ft²






















































































