**Standout Features:**
- Charming ground floor apartment in a Grade II listed building.
- Unique private sunny courtyard garden, a rare find near the city center.
- Spacious, character-rich lounge with exposed floorboards and bay window.
- Open plan dining area and modern kitchen with integrated appliances.
- Two bright double bedrooms, with rustic accents.
- Stylishly finished three-piece shower room.
- Prime location, just 5 minutes from Preston city center and bordering Avenham Park.
- Ideal for first-time buyers, professionals, and investors.
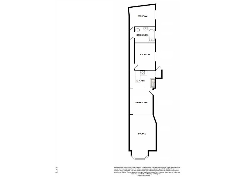
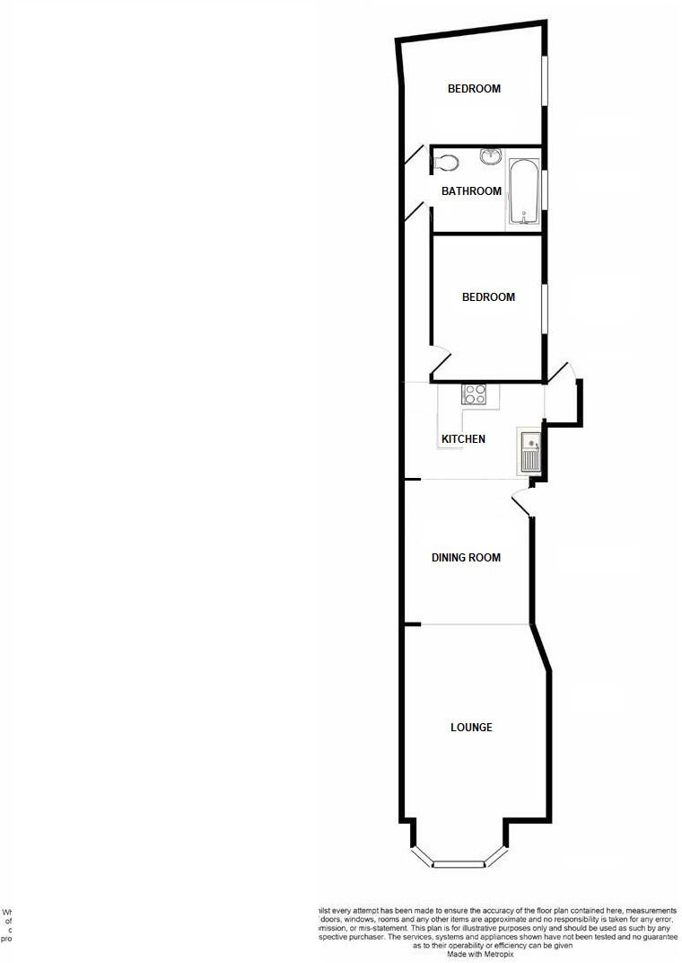
This enchanting ground floor apartment perfectly marries period charm with modern comforts, making it an ideal haven for first-time buyers, professionals, or savvy investors. Nestled in a striking Grade II listed building, the residence boasts a rare gem—a private, sunny courtyard garden, offering a tranquil retreat in the bustling heart of the city.
Inside, you'll find a spacious lounge adorned with original features such as exposed wooden floorboards, a beautiful bay window with bespoke shutters, and a decorative fireplace, creating a warm and inviting atmosphere. The open-plan dining room leads into a well-equipped modern kitchen, ensuring both functionality and elegance for cooking and entertaining.
The two generous double bedrooms invite natural light, with one featuring an exposed chimney breast that adds rustic appeal. The stylish three-piece shower room completes the picture with its contemporary design and charming accents. Conveniently located just a short walk from Preston’s vibrant city centre and nestled next to Avenham Park, this apartment offers not only comfort but a lifestyle of convenience.
While the property is rich in character, potential buyers should note that it is a leasehold property within a Grade II listed building, which may present unique considerations. However, with the ongoing demand for quality living spaces in prime locations, this apartment remains a rare opportunity that is unlikely to last long—don’t miss out on making it your own.
2 bedroom flat for sale in Bushell Place, Preston, Lancashire, PR1 — £210,000 • 2 bed • 1 bath • 963 ft²
2 bedroom apartment for sale in Meadow Bank, Penwortham, Lancashire, PR1 — £140,000 • 2 bed • 1 bath • 538 ft²
1 bedroom apartment for sale in Fishergate Hill, Preston, PR1 — £89,000 • 1 bed • 1 bath • 496 ft²
2 bedroom apartment for sale in City Views, Preston, PR1 — £89,950 • 2 bed • 1 bath • 535 ft²
1 bedroom flat for sale in West Cliff, Preston, PR1 — £130,000 • 1 bed • 1 bath • 888 ft²
2 bedroom flat for sale in Burleigh Road, Preston, Lancashire, PR1 — £110,000 • 2 bed • 2 bath • 691 ft²


















































