**Standout Features:**
- **Three well-proportioned bedrooms** with built-in storage
- **Spacious off-street driveway** for multiple vehicles
- **Well-maintained garden**, perfect for outdoor activities
- **Contemporary kitchen** with modern appliances, including a built-in oven
- **Convenient access to local amenities**, schools, and transport links
- **Excellent broadband speeds** and mobile signal
**Potential Concerns:**
- Average-sized for a family home
- Nearest schools have mixed Ofsted ratings
---
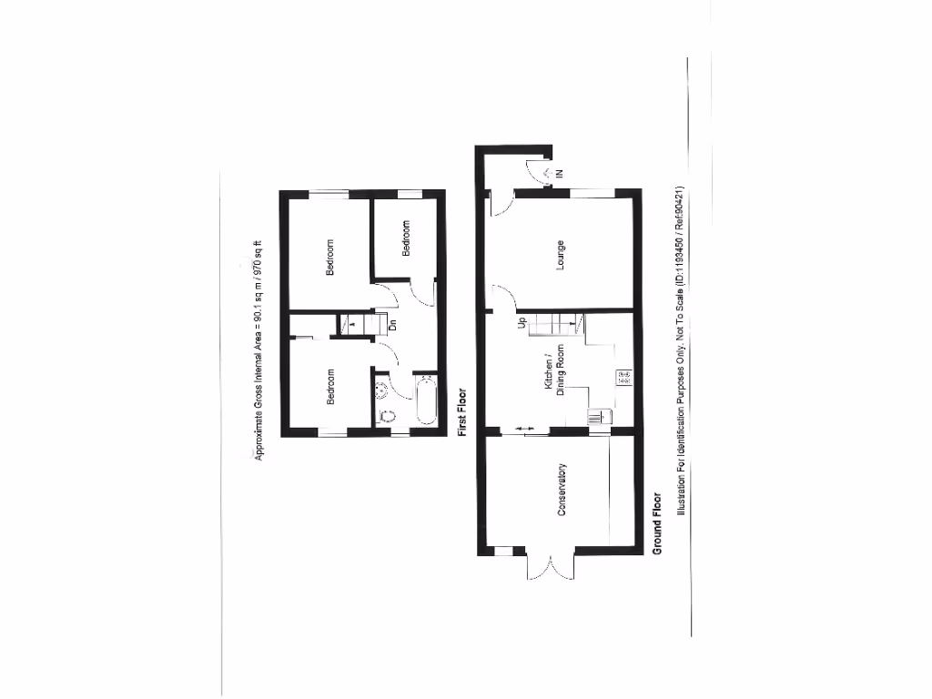
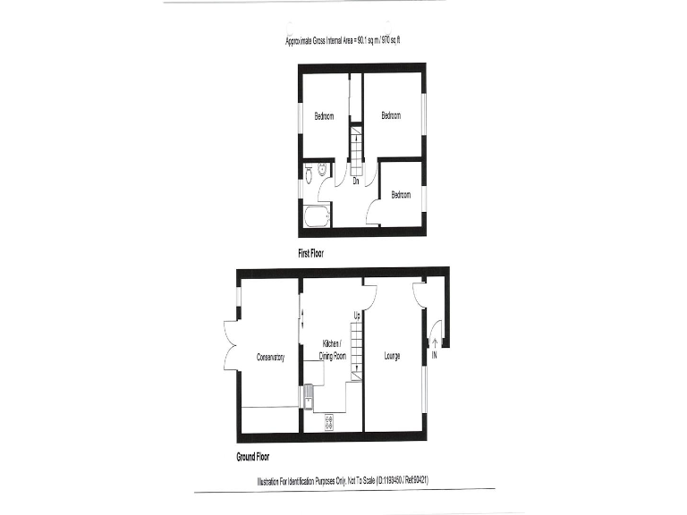
Welcome to this charming three-bedroom mid-terrace house located on the desirable Bayswater Drive in Rainham, offering an inviting blend of comfort and potential. With a generous total space of 958 square feet, this property features a spacious driveway, perfect for parking multiple vehicles, and a well-maintained garden that invites outdoor enjoyment. The contemporary design includes a bright and airy living room leading to a modern kitchen equipped with sleek cabinetry and appliances—ideal for family living or entertaining.
Constructed in 1975, the home reflects a classic style yet offers ample opportunity for personal modernization. The three bedrooms, complete with built-in wardrobes, provide enough space for a growing family or room for guests. Though the property is situated within a community with varying school Ofsted ratings, the immediate area boasts essential amenities and easy access to transport links, making daily commuting or errands hassle-free. This family-friendly home presents an exceptional opportunity for secure and comfortable living in a sought-after neighborhood, perfect for first-time buyers or those looking for a lucrative investment. Don’t miss your chance to secure this gem—properties like this are rare and don’t stay on the market for long!
3 bedroom terraced house for sale in Ploughmans Way, Rainham, Gillingham, Kent, ME8 — £320,000 • 3 bed • 1 bath • 744 ft²
3 bedroom semi-detached house for sale in Bayswater Drive, Gillingham, Kent, ME8 — £325,000 • 3 bed • 1 bath • 751 ft²
3 bedroom semi-detached house for sale in Impressive family home with driveway & 100ft garden - Bendon Way, ME8 — £350,000 • 3 bed • 1 bath • 947 ft²
3 bedroom semi-detached house for sale in High Elms, Rainham, Gillingham, Kent, ME8 — £350,000 • 3 bed • 1 bath • 786 ft²
3 bedroom terraced house for sale in Hazlemere Drive, Gillingham, Kent, ME7 — £300,000 • 3 bed • 1 bath • 838 ft²
3 bedroom semi-detached house for sale in Caldew Avenue, Gillingham, Kent, ME8 — £375,000 • 3 bed • 1 bath • 786 ft²


























































