Period character, large garage and south-facing garden within walking distance of Stony Stratford High Street..
- Edwardian end-terrace with period features and UPVC sliding sash windows
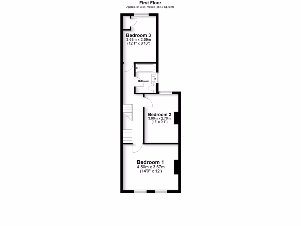
- Four double bedrooms over three floors including converted attic
- Large brick garage/workshop with rear garden access and parking space
- South-facing rear garden with patios, lawn and stocked borders
- Separate lounge and dining room; utility and ground-floor WC
- Single main bathroom; only one bath/shower room for four bedrooms
- Some rooms dated and in need of modernization and redecorating
- Top-floor bedroom has restricted headroom; check head clearance
An Edwardian four-double-bedroom end-terrace in Stony Stratford offering generous family accommodation over three floors and a large garage/workshop. The house retains period features including bay windows, picture rails and fireplaces, and benefits from UPVC sliding sash double glazing and gas central heating. The south-facing rear garden and short walk to the High Street make this a convenient, well-located home.
The layout suits a growing family: separate living and dining rooms, kitchen with adjoining utility, ground-floor WC, three double bedrooms on the first floor and a double attic bedroom. The large brick garage/workshop provides rare off-street parking, storage and DIY space in this area. Chain-free freehold sale simplifies moving for buyers.
Honest points to note: some internal areas show dated decor and will require modernization to suit contemporary tastes. The top-floor bedroom has restricted headroom in parts due to the vaulted ceiling and roofline. Walls are original solid brick (no known insulation), so buyers should budget for possible insulation or energy-efficiency improvements if required. There is a single main bathroom plus a ground-floor WC.
This property will appeal to families seeking period character, handy town-centre accessibility and substantial ancillary space. With scope to update kitchens, bathrooms and improve thermal performance, the house also offers sensible value and renovation potential in a popular Stony Stratford location.
4 bedroom terraced house for sale in Wolverton Road, Stony Stratford, MK11 — £500,000 • 4 bed • 2 bath • 1141 ft²
5 bedroom end of terrace house for sale in Wolverton Road, Stony Stratford, Milton Keynes, MK11 — £825,000 • 5 bed • 2 bath • 2280 ft²
3 bedroom terraced house for sale in Wolverton Road, Stony Stratford, MILTON KEYNES, MK11 — £350,000 • 3 bed • 1 bath • 1131 ft²
4 bedroom house for sale in Wolverton Road, Stony Stratford, Milton Keynes, Buckinghamshire, MK11 — £465,000 • 4 bed • 2 bath • 1387 ft²
2 bedroom terraced house for sale in King Street, Stony Stratford, Milton Keynes, MK11 — £250,000 • 2 bed • 1 bath • 680 ft²
4 bedroom terraced house for sale in St. Pauls Court, Stony Stratford, Milton Keynes, Buckinghamshire, MK11 — £700,000 • 4 bed • 2 bath • 1641 ft²














































































