Exceptional family-sized living with two garages and garden-facing balconies.
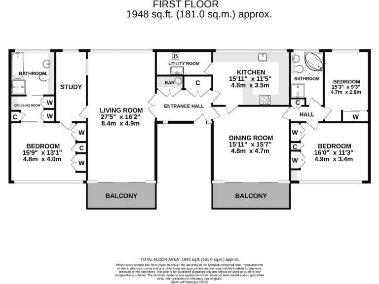
Extremely large apartment — c.1,948 sq ft, originally two flats combined
A rare, extensively spacious three-bedroom first-floor apartment in Edgbaston, created by combining two flats to form an exceptionally large home (approx. 1,948 sq ft). Light-filled living and dining rooms both open onto balconies that face well-maintained communal gardens, while two private garages and generous storage make this a practical family choice. The modern kitchen, separate utility and principal bedroom with dressing room and en-suite add everyday convenience and comfort.
The location is a strong draw for families: excellent local schools, easy access to public transport, and proximity to the University of Birmingham, Queen Elizabeth and City hospitals. The communal gardens and mid-century block setting suit buyers who want space and green outlooks close to the city.
Important facts and considerations are shared upfront. The property is leasehold (934 years remaining) and chain free; service charge and ground rent are payable quarterly (see figures). The building dates from the late 1960s–1970s, has timber-frame elements with partial insulation, and double glazing fitted before 2002 — buyers may wish to factor long-term maintenance and thermal-performance updates into plans. Crime levels are reported above average for the area.
Overall this apartment suits a family seeking unusually generous living space with clear entertaining potential and storage, while accepting some building-era maintenance and recurring leasehold charges.
3 bedroom apartment for sale in Rotton Park Road, Edgbaston, Birmingham, B16 9JH, B16 — £575,000 • 3 bed • 3 bath • 1650 ft²
2 bedroom apartment for sale in Woodbourne, Augustus Road, Birmingham, B15 — £310,000 • 2 bed • 1 bath • 794 ft²
2 bedroom apartment for sale in Woodbourne, Augustus Road, Edgbaston, B15 3PH, B15 — £300,000 • 2 bed • 1 bath • 888 ft²
2 bedroom apartment for sale in Richmond Hill Road, Edgbaston, Birmingham, B15 — £170,000 • 2 bed • 1 bath • 537 ft²
2 bedroom apartment for sale in Melville Road, Edgbaston, B16 — £140,000 • 2 bed • 1 bath • 735 ft²
3 bedroom apartment for sale in Petersham Place, Edgbaston, B15 — £750,000 • 3 bed • 2 bath • 1750 ft²


































































































































