Development-ready home near top schools and countryside walks.
- Detached three double bedrooms and family bathroom
- Generous c.0.34 acre plot, very large for area
- Planning granted to demolish and build a sizeable detached home
- Needs renovation; upgrade insulation and services expected
- Heating via electric storage heaters (may be costly)
- Garage and private, secluded garden with mature trees
- No onward chain; very low local crime
- Slow broadband and average mobile signal
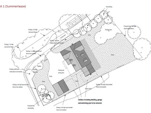
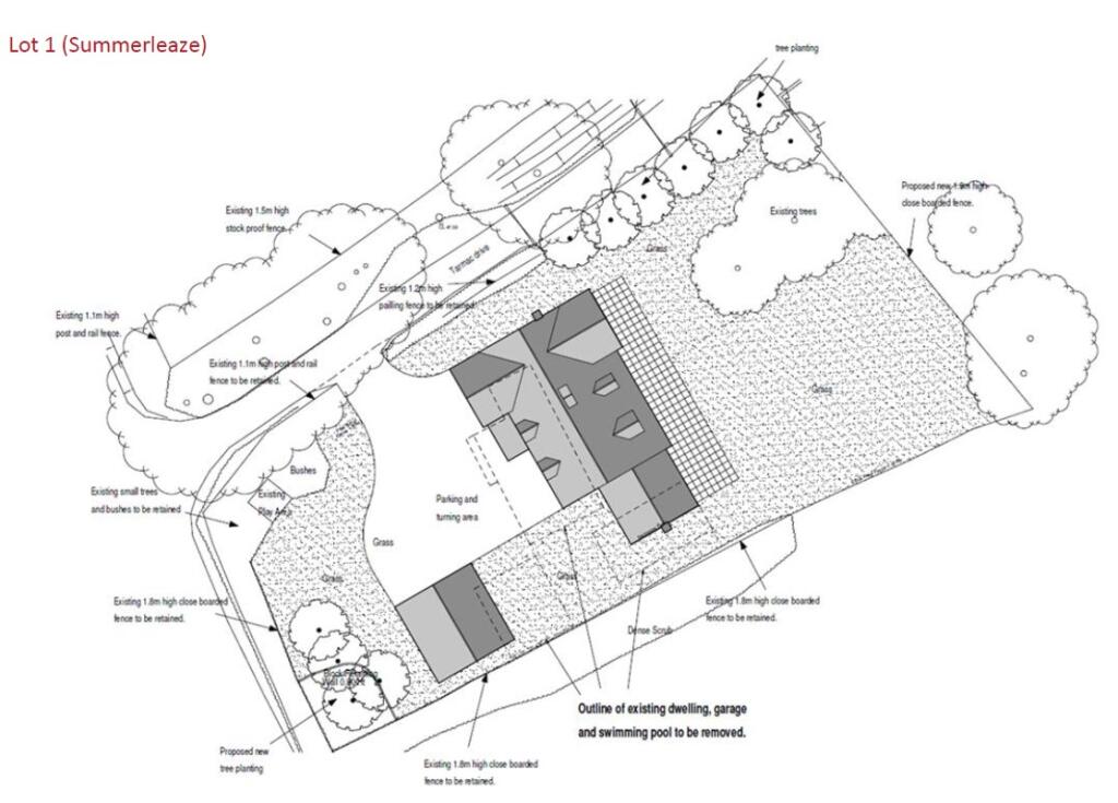
Set on a very large c.0.34 acre plot on the southern edge of Street, this detached three-bedroom house offers a rare opportunity for a family to create a substantial home. The existing 1950s property provides immediate accommodation with three double bedrooms, a family bathroom and garage, while the generous garden and mature trees deliver privacy and room for extension or landscaping.
Planning permission has been granted to demolish and replace with a sizeable detached home, so the site will particularly appeal to buyers wanting to build anew or substantially renovate. The house is in need of renovation: walls are traditional stone (likely uninsulated), heating is by electric storage heaters and glazing details are not defined, so upgrading thermal performance and services will be required.
Practical positives include no onward chain, very low local crime and affordable council tax. The plot sits within easy reach of local amenities, countryside walks and several well-regarded schools including Millfield and good-rated state primaries and secondaries, making it convenient for families. Note that broadband speeds are reported as slow and mobile signal is average — factors to consider if home working is essential.
This is a clear development or renovation opportunity: buyers should budget for substantial works or take advantage of the approved redevelopment option to realise the site’s full potential. Its secluded setting, large plot and proximity to schools and countryside are genuine selling points for those prepared to invest in improvement.
3 bedroom semi-detached house for sale in Smithfield Road, Street, BA16 — £195,000 • 3 bed • 1 bath • 1100 ft²
3 bedroom semi-detached house for sale in Overleigh, Street, BA16 — £325,000 • 3 bed • 1 bath • 955 ft²
Plot for sale in Lot 1 at Summerleaze, Marshalls Elm, Street, BA16 — £400,000 • 1 bed • 1 bath
2 bedroom semi-detached house for sale in Pine Close, Street, Somerset, BA16 — £219,950 • 2 bed • 1 bath • 797 ft²
3 bedroom semi-detached house for sale in Beech Road, Street, BA16 — £270,000 • 3 bed • 1 bath • 787 ft²
4 bedroom detached house for sale in A unique opportunity to create a dream home on the edge of Street, BA16 — £495,000 • 4 bed • 2 bath • 2454 ft²


























































































































